1 / 10

Apartment for sale - Limbergstrasse 16, 8127 Forch

4.5 rooms • 122 m² • 4th floor
CHF 1’890’000.-
CHF 14’427 m²

Why you'll love this property

Stunning views of nature

Private outdoor spaces

Modern design with quality finishes

Arrange a visit

Book a visit with Gino today!

Gino Ponsillo
art-im IMMOBILIEN AG
This description has been automatically translated from German.

Construction has started! high living quality: new apartments near nature, lake, and city

The hamlet of Limberg in the lakeside municipality of Küsnacht is picturesque: nestled in meadows, fields, and forests, and blessed with sunshine at mostly fog-free heights, yet only a few minutes by car from Zurich city. Here, a multi-family house with a maximum of ten condominiums is being built, combining traditional rural architecture with a top-modern interior design for high living quality.

Whether a studio as a practical pied-à-terre near the city, a family-friendly garden home with a sunn...

Property details

Available from
01.12.2026
Rooms
4.5
Construction year
2025
Living surface
122
Usable surface
131
Floor
4th
Building floors
4

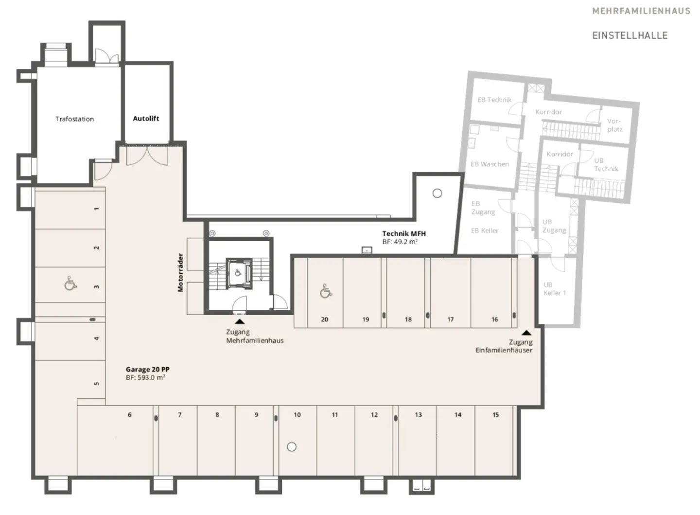
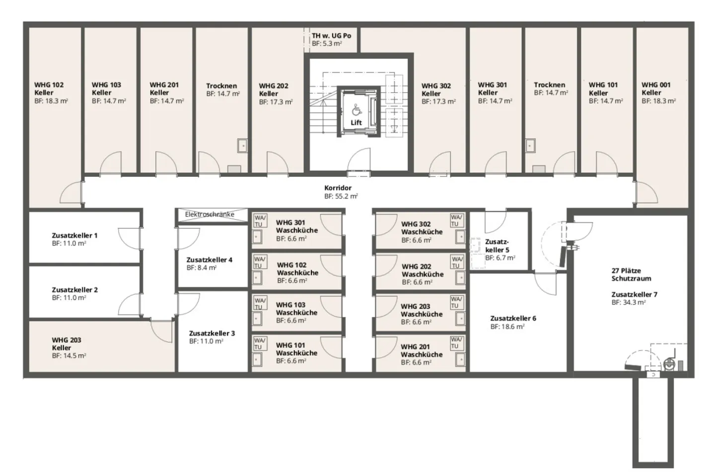
Features

Garage
Balcony
Parking
Elevator
New development
Cable TV
Washing machine
Tumble dryer
Child friendly
Animal friendly

Agency

art-im IMMOBILIEN AG
Address:Florastrasse 18a, 8610, Uster
Ref: 0062_MFH_4.5_302_PU7
Online since
26/08/2025
2 months ago

Location

Limbergstrasse 16, 8127 Forch