Apartment for sale - 1450 Ste-Croix
Why you'll love this property
Close to public transport
Beautiful parquet floors
Shared outdoor terrace
Arrange a visit
Book a visit with Florence today!
In the heart of ste-croix, super apartments ideally located.
Close to transport, shops, and schools
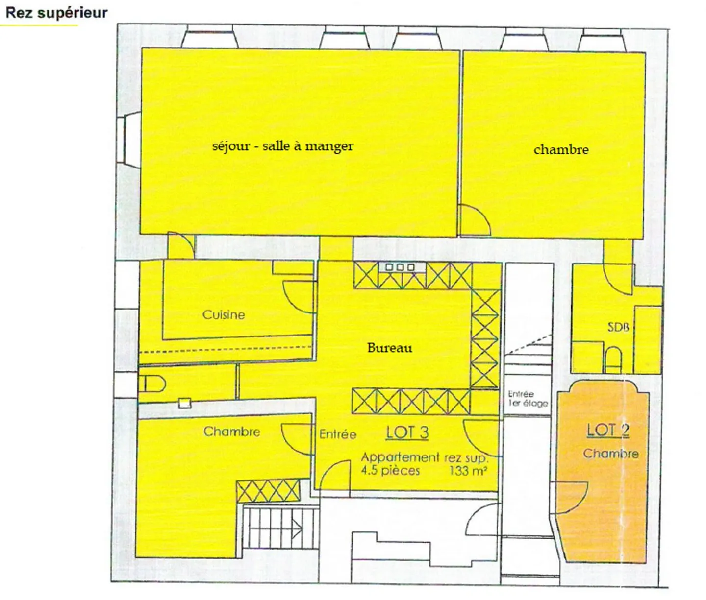
An apartment to refresh of 143 m2 with 4.5 (including independent room) rental potential 1750.-
The building has always been perfectly maintained (boiler replaced in 2015, electricity redone in 2015)
The apartments have all retained their beautiful parquet floors and beautiful fireplaces, but some rooms could be refreshed.
Location: City center
Amenities: Everything is just a stone's throw away
Exteriors: Common outdoor terrace
Annexes: 1 cellar
Technical data: Oil...
Property details
- Available from
- By agreement
- Rooms
- 4.5
- Construction year
- 1820
- Living surface
- 143 m²




