1 / 14

Apartment for sale - Letzigraben 111, 8047 Zürich

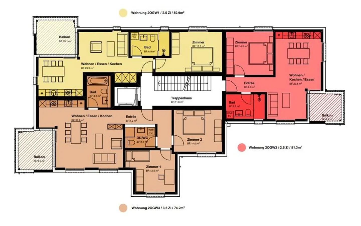
2.5 rooms • 50.9 m²
CHF 995’000.-
CHF 19’548 m²

Why you'll love this property

Private garden spaces

High-quality finishes

Wheelchair accessible lift

Arrange a visit

Book a visit with Moser today!

Moser
MANEST ImmoTreu AG
This description has been automatically translated from German.

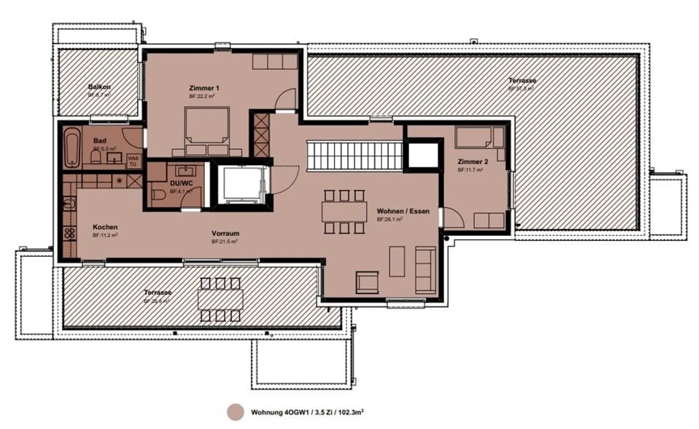
New 2.5 and 3.5 room apartments / move-in summer 2026

Located at the foot of Üetliberg, Albisrieden together with Altstetten forms district 9. Well connected to the public transport of the city of Zurich, you will live here in an exclusive residential community in condominium ownership.

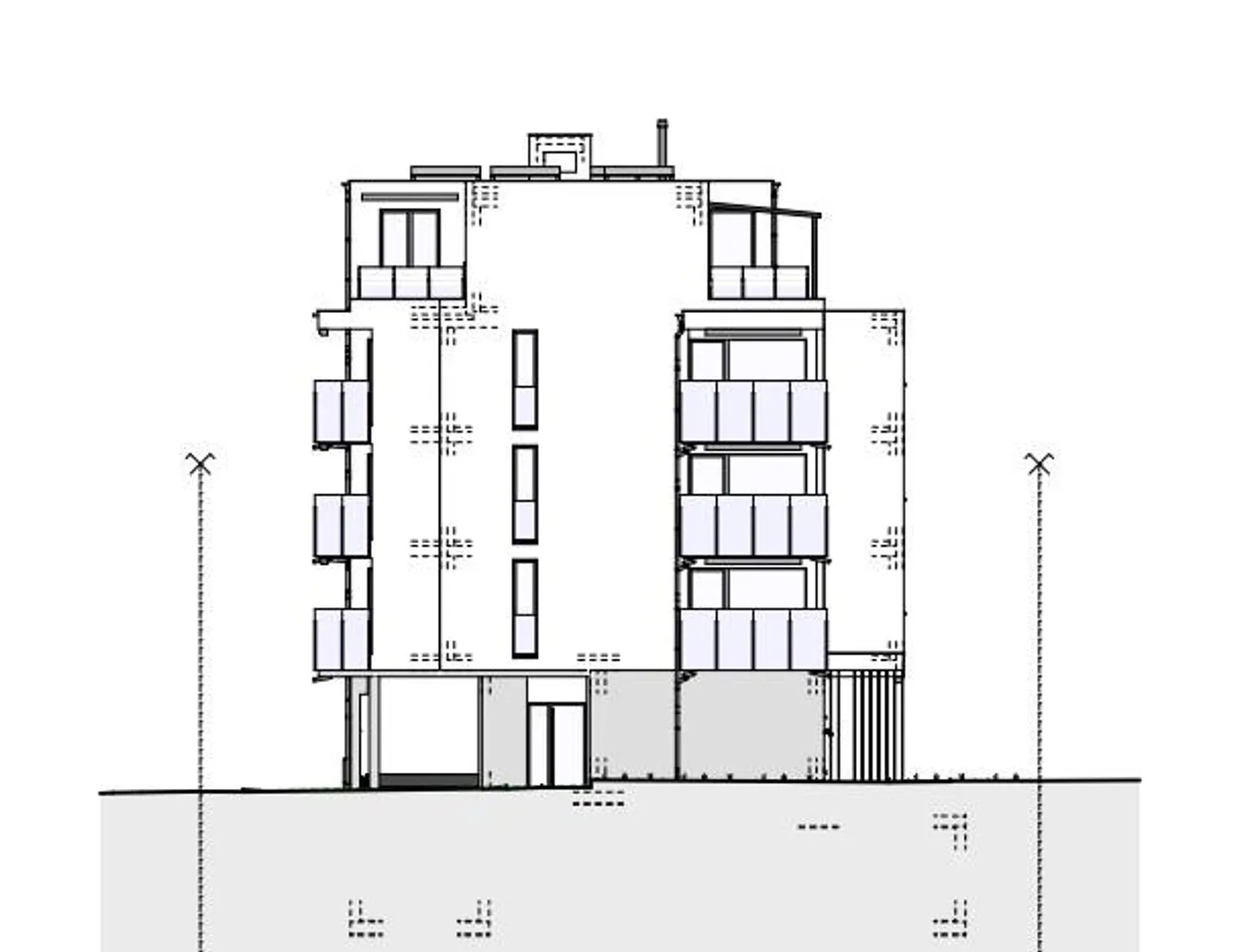
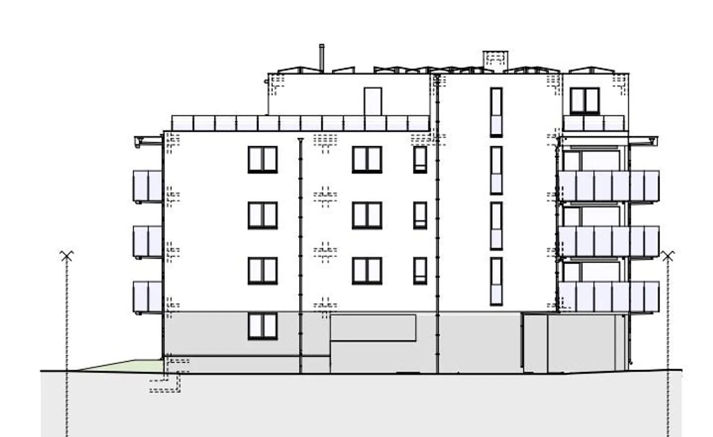
The new building has 12 apartments and 9 parking spaces in the in-house underground garage, flat purchase prices starting from CHF 995,000.00, including land share:

1 x 2.5 rooms, approx. 51 sqm + 166 sqm garden share for private use (1x sold)

1 x 3.5 rooms, approx. 45...

Property details

Available from
By agreement
Rooms
2.5
Construction year
2025
Living surface
50.9
Building floors
4

Features

Garage
Balcony
Elevator
Cellar
Wheelchair accessible

Agency

MANEST ImmoTreu AG
Address:Schlieren, Alter Zürichweg, 8952

Location

Letzigraben 111, 8047 Zürich

Sources