DENGES, residence with elevator, 3 last lots available!
Why you'll love this property
Historic building charm
Modern open kitchen
Spacious 19m2 balcony
Arrange a visit
Book a visit with Joëlle today!
Just 8 minutes from Morges, in the charming village of Denges, transformation of an existing building that will include 7 lots. VISITS ALSO ON WEEKENDS!
PERMIT IN FORCE
You will be charmed by this magnificent promotion in a building dating from around 1800. A marriage between the old and the modern, exposed beams!
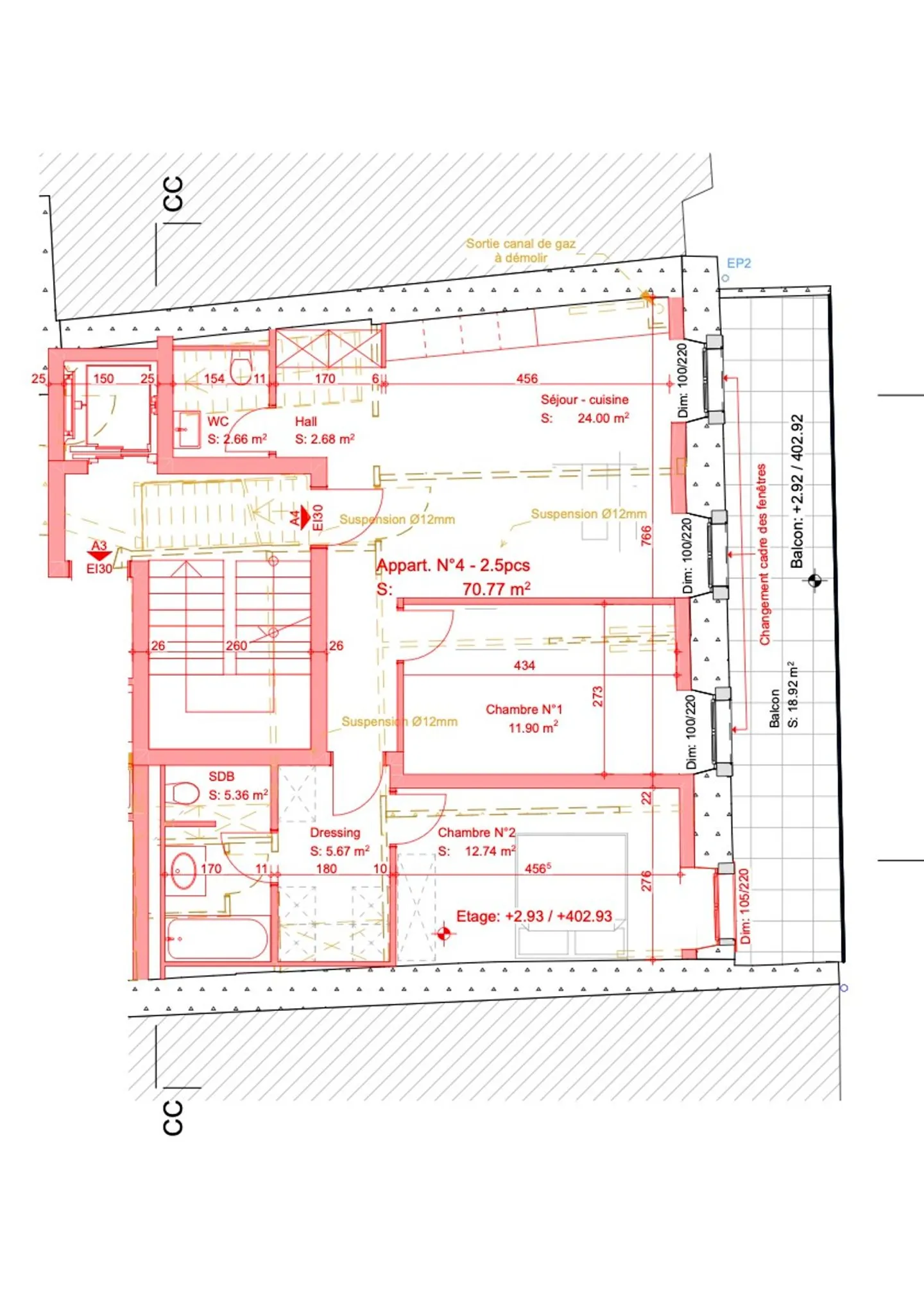
1st floor :
3.5 room apartment of 82m2 net and 92m2 weighted - lot 4:
Entrance hall with wardrobe
Living / dining room with fully equipped open kitchen. Access to a 19m2 balcony
2 bedrooms, o...
Property details
- Available from
- By agreement
- Rooms
- 3.5
- Renovation year
- 2025
- Floor
- 1st
- Building floors
- 2




