Apartment for sale - Unterdorfstrasse 10, 8966 Oberwil-Lieli
Why you'll love this property
Thoughtful room layout
High-quality materials
Future-ready with EV charging
Arrange a visit
Book a visit with MAKA today!
Eichmatt - Living in the Green
4.5 room apartment on the 1st floor (right)
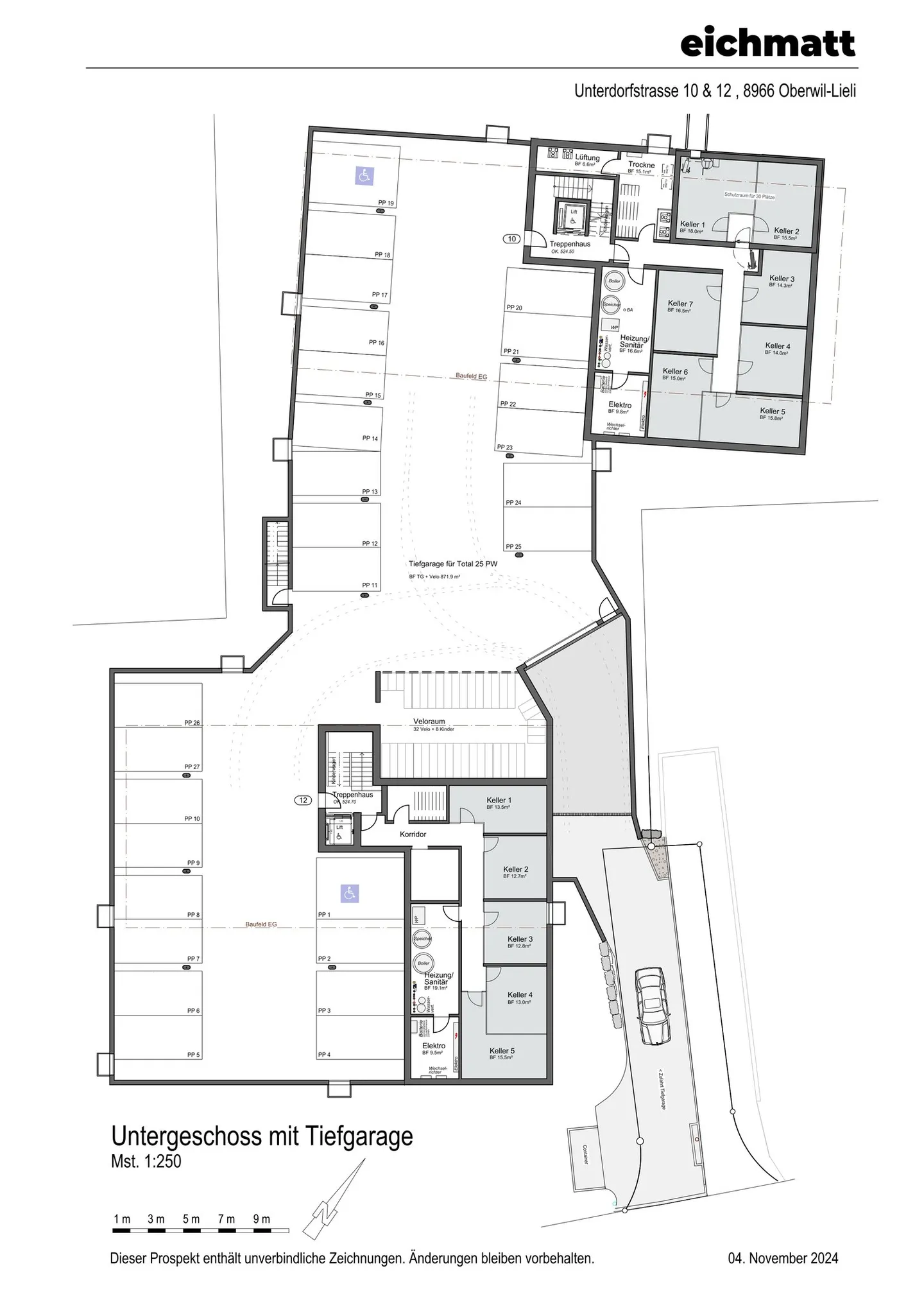
The new construction project with two multi-family houses includes new 4.5-room condominiums and three 3.5-room condominiums as well as a continuous underground garage with a total of 27 parking spaces.
The project impresses with a well-thought-out room layout with perfectly integrated outdoor spaces. The high construction quality, the carefully selected and coordinated materials, and the innovative heating and energy concept ensure a pleasant room and l...
Property details
- Available from
- By agreement
- Rooms
- 4.5
- Construction year
- 2025
- Living surface
- 128 m²
- Floor
- 1st



