Apartment for sale - Rappenweg 10, 8247 Flurlingen
Why you'll love this property
Private garden & terrace
Close to Rhine river
High-quality finishes
Arrange a visit
Book a visit with Ingo today!
Occupancy from mid-June 2026: City meets nature - Your spacious dream apartment in Flurlingen
New building (ready for occupancy): Garden apartment at Rappenweg 10, Flurlingen ZH
Nature-oriented living with city connection - two apartments still available
In a privileged location in Flurlingen, five high-quality condominiums with terrace, garden and lift are being built - directly on the Rhine bank, within walking distance of the train station and with the best evening sun. Two apartments are still available.
Garden apartments in the new building (MFH Rappenweg, total 5 units)
Available units
Property details
- Available from
- 15.06.2026
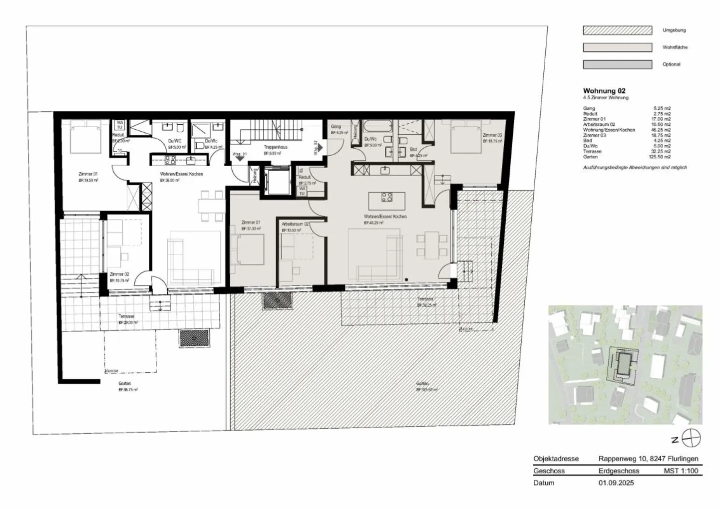
- Rooms
- 4.5
- Bathrooms
- 2
- Construction year
- 2026
- Living surface
- 132 m²
- Building floors
- 3




