Apartment for sale - Hinterwiesen 1, 8553 Eschikofen
Why you'll love this property
Elegant oak flooring
Modern kitchen with steamer
Covered patio with garden
Arrange a visit
Book a visit with Gauer today!
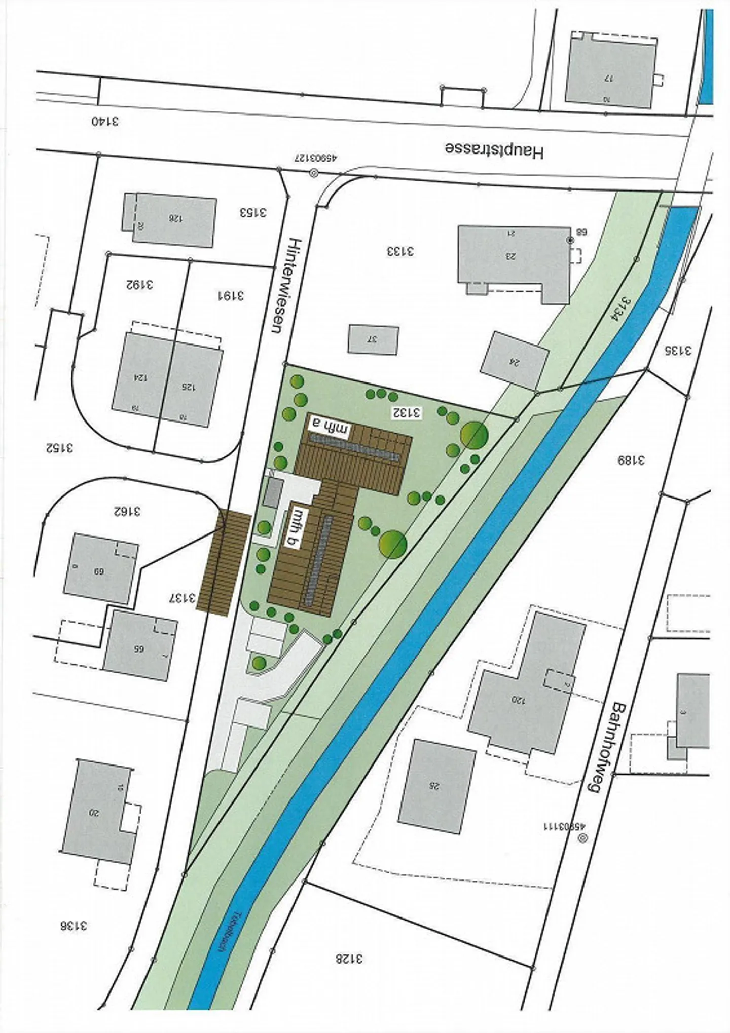
COPY - New Residential Building "am Tobelbach" Eschikofen
New residential building "am Tobelbach" in Eschikofen
In a wonderfully quiet and nature-friendly location, this charming residential building with a total of 6 residential units is being created.
Convince yourself of the practical floor plans and the appealing standard of development that offers the highest living comfort:
. noble oak country house floorboards and fine stoneware tiles
. modern fitted kitchens with steamer and oven
. built-in wardrobes in the entrance area
. two wet cells with WC, bath...
Property details
- Available from
- By agreement
- Rooms
- 4.5
- Construction year
- 2026
- Living surface
- 109.5 m²
- Floor
- Ground
- Building floors
- 3



