Wohnung mieten - Cadonaustrasse, 7000 Chur
Warum Sie diese Immobilie lieben werden
Stilvolles Innendesign
Terrasse für Outdoor-Leben
Nah am Fürstenwaldpark
Besichtigung vereinbaren
Besichtigung buchen
Haus G - Erhöht wohnen und Natur geniessen - Neubau Überbauung
Erhöht wohnen – Natur geniessen – stadtnah leben - Dies beschreibt die neue Überbauung Töbeli am nördlichen Siedlungsrand von Chur am besten. In einer ersten Etappe entstehen 54 moderne Mietwohnungen von 2.5 bis 5.5 Zimmern in den Häusern D bis I.
Die Wohnungen überzeugen mit gut durchdachten Grundrissen, hellen Wohnräumen und einem stilvollen Innenausbau. Das geplante Projekt verbindet modernes Wohnen mit der Nähe zur Natur und zur Stadt. Die Lage direkt beim Naherholungsgebiet Fürstenwald biete...
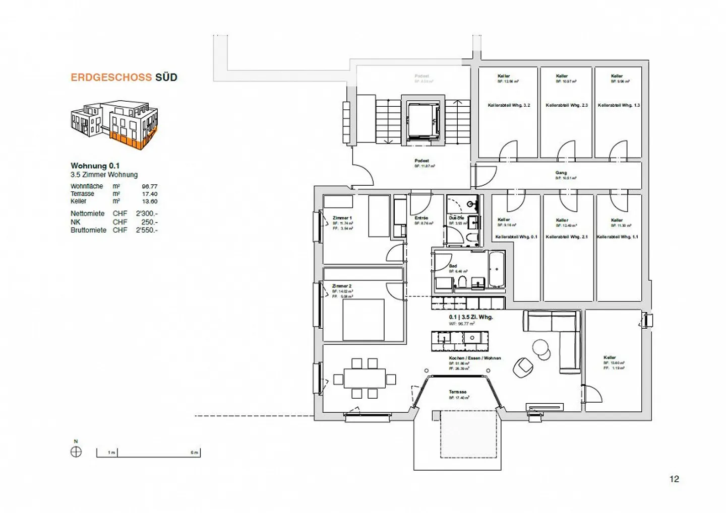
Kostenaufstellung
- Nettokosten
- CHF 2’550
- Zusätzliche Kosten
- CHF 250
- Gesamtkosten
- CHF 2’550
Immobiliendetails
- Verfügbar ab
- Nach Vereinbarung
- Zimmer
- 3.5
- Baujahr
- 2026
- Wohnfläche
- 96 m²
- Etage
- EG
- Geschosse
- 4



