Wohnung mieten - Kupfergasse 4, 7000 Chur
Warum Sie diese Immobilie lieben werden
Charme eines historischen Gebäudes
Ruhige Fußgängerzone
Zentrale Lage mit Annehmlichkeiten
Besichtigung vereinbaren
Besichtigung mit Gaudenz buchen
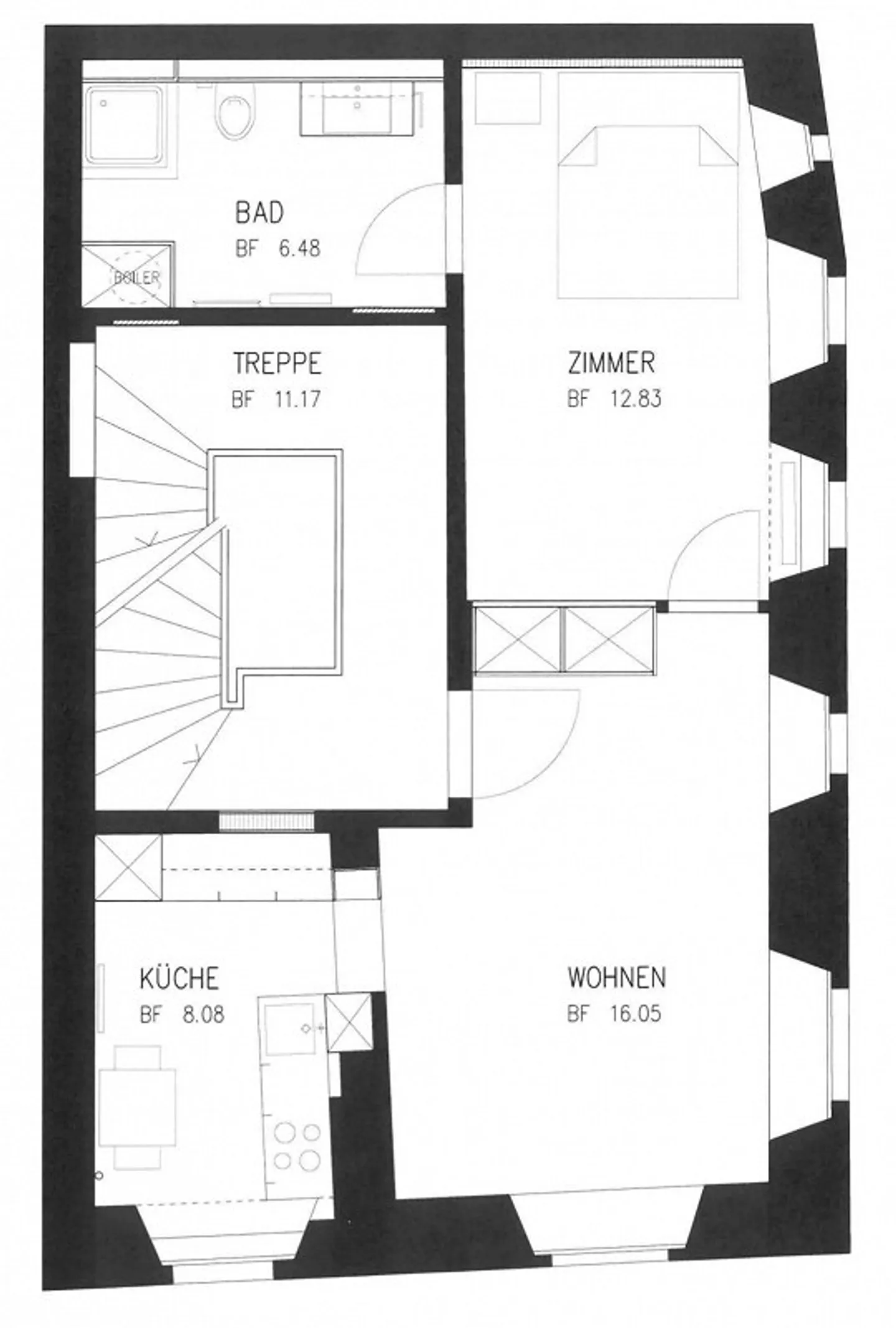
2 Zimmer-Wohnung in Chur mieten
2-Zimmer-Altbauwohnung in der Churer Altstadt
Bitte bei Interesse per Whatsapp, SMS oder E-Mail melden.
Objektbeschreibung
Diese 2 Zimmer-Wohnung befindet sich in einem historischen Altbau in der Kupfergasse, mitten im Zentrum der Churer Altstadt. Die Räumlichkeiten sind aufgrund der Aufteilung und Grösse für die Nutzung durch eine Person ausgelegt.
Lage
Die Wohnung liegt in der verkehrsberuhigten Kupfergasse. Sämtliche Infrastrukturen der Stadt (Einkaufsmöglichkeiten, Post, Apotheken) sowie Cafés ...
Immobiliendetails
- Verfügbar ab
- Nach Vereinbarung
- Zimmer
- 2
- Wohnfläche
- 43 m²
- Etage
- 1.
- Geschosse
- 3



