Wohnung mieten - Binningerstrasse 62, 4123 Allschwil
Warum Sie diese Immobilie lieben werden
Helles Wohnzimmer mit Parkett
Balkon mit Blick ins Grüne
Lift und Waschküche zur Mitbenutzung
Besichtigung vereinbaren
Besichtigung mit Nicolas buchen
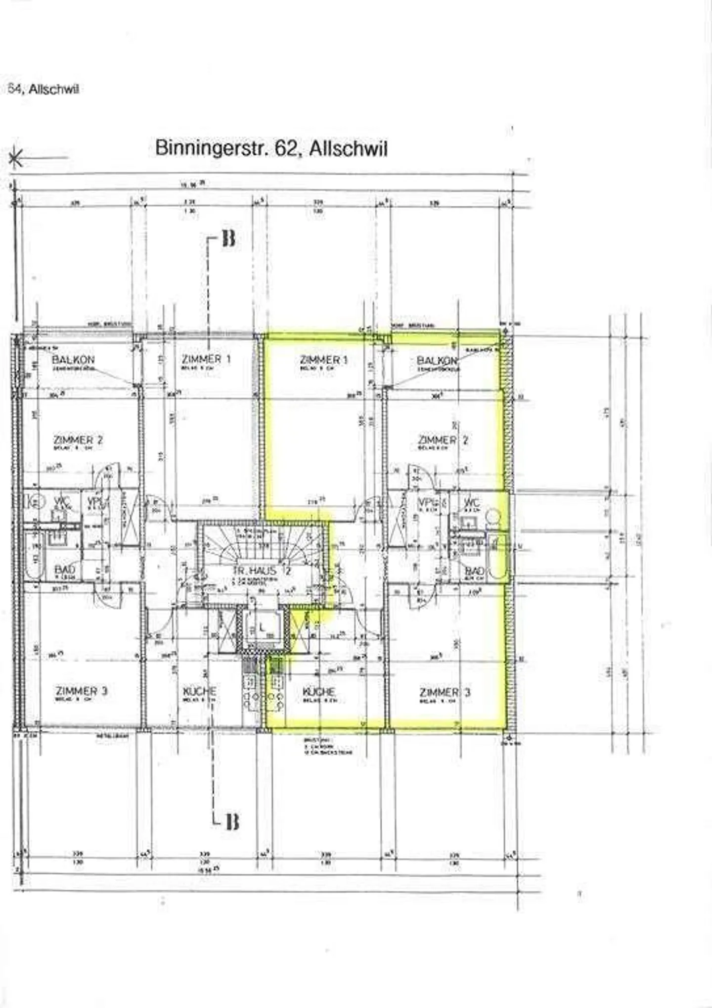
Gemütliche 3.5-zimmerwohnung in allschwil
Wir vermieten an zentraler Lage diese helle 3.5-Zimmerwohnung in Allschwil mit folgendem Ausbaustandard:
- Küche mit Glaskeramikherd - kein Geschirrspüler
- Lichtdurchflutetes Wohnzimmer mit Parkettboden
- Helle und grosse Zimmer
- Badezimmer mit Badewanne
- Separates WC
- Balkon mit Blick ins Grüne
- Eigenes Keller- und Estrichabteil
- Lift vorhanden
- Waschküche und Fahrradraum zur Mitbenützung
Direkt vor dem Haus befindet sich die Bushaltestelle mit direkter Verbindung ins Zentrum von Allschwil und Ri...
Kostenaufstellung
- Nettokosten
- CHF 1’770
- Zusätzliche Kosten
- CHF 300
- Gesamtkosten
- CHF 1’770
Immobiliendetails
- Verfügbar ab
- Nach Vereinbarung
- Zimmer
- 3.5
- Baujahr
- 1966
- Renovierungsjahr
- 1999
- Wohnfläche
- 76 m²
- Etage
- 1.



