Geschäft mieten - Bahnhofstrasse 8, 8200 Schaffhausen
Warum Sie diese Immobilie lieben werden
Vielseitig nutzbar als Büro oder Laden
Moderner Laminatboden
Top Lage in der Buchsbaumpassage
Besichtigung vereinbaren
Besichtigung mit Frau buchen
Laden-/Bürofläche direkt beim Bahnhof Schaffhausen
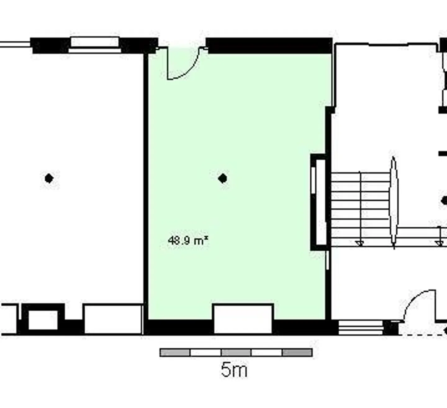
Wir vermieten per 01. Februar 2026 an idealer Lage in der Buchsbaumpassage ein ca. 49m2 grosses Ladenlokal.
Die Räumlichkeit verfügt über Laminat auf der ganzen Fläche und kann als Büro, Atelier oder Verkaufsfläche für Kleider, Accessoires usw. genutzt werden (keine Gastronomie oder ähnliches). Die sanitären Anlagen befinden sich im Untergeschoss.
Für einen Besichtigungstermin können Sie gerne den jetzigen Mieter per E-Mail kontaktieren. Herr Robertson, davidrobertson3520@gmail.com
Grundrisspla...
Kostenaufstellung
- Nettokosten
- CHF 1’390
- Zusätzliche Kosten
- CHF 190
- Gesamtkosten
- CHF 1’390
Immobiliendetails
- Verfügbar ab
- 01.02.2026
- Baujahr
- 1994
- Wohnfläche
- 49 m²
- Nutzfläche
- 49 m²
- Grundstücksfläche
- 1709 m²



