Bürofläche mieten - Rue Du 31-Décembre 62, 1207 Genève
Warum Sie diese Immobilie lieben werden
Geräumiger 30 m² Raum
Zwei zusätzliche Büros
Kein öffentlicher Zugang erlaubt
Besichtigung vereinbaren
Besichtigung buchen
Büro 3 zimmer
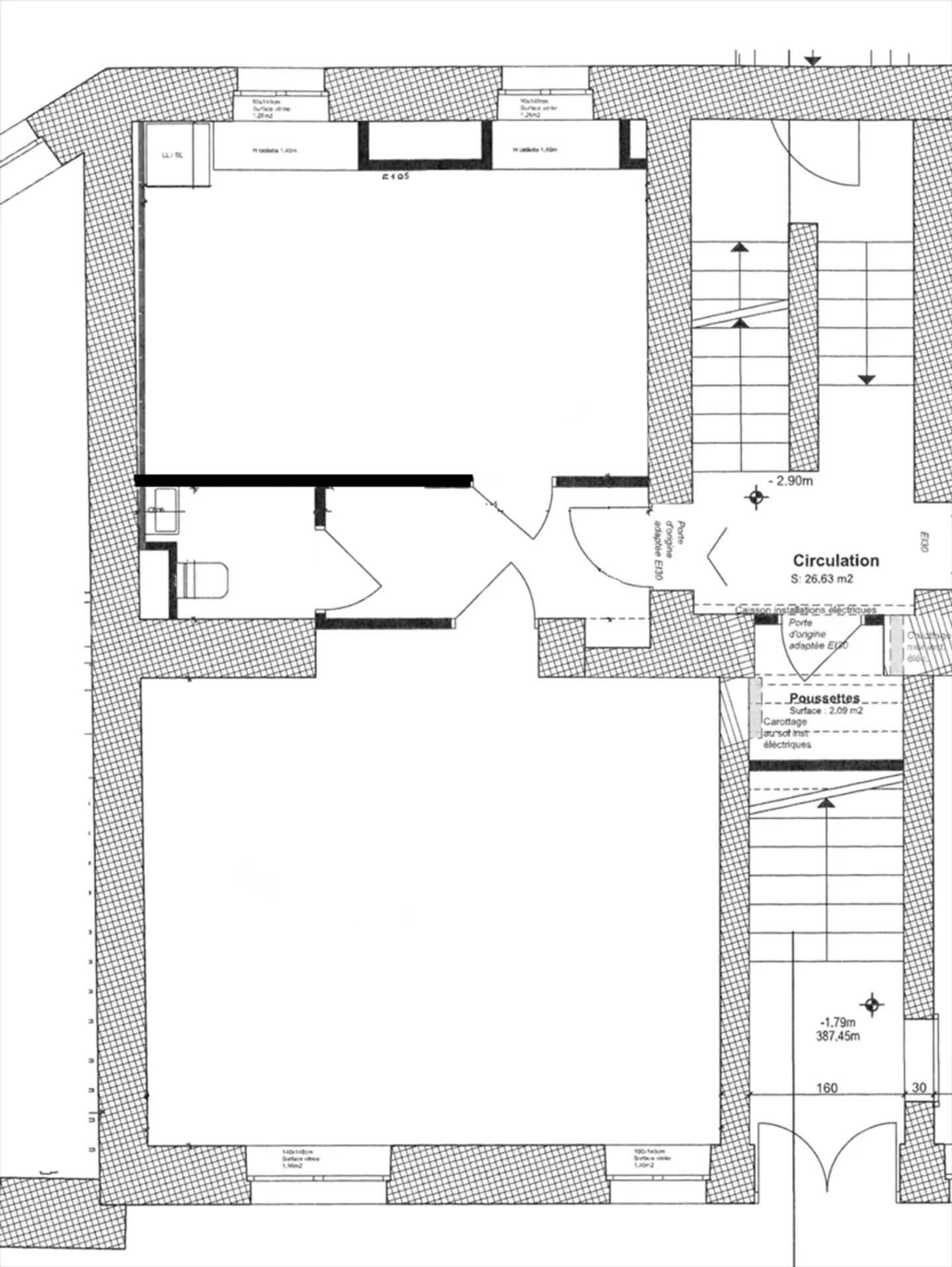
Büros in Eaux-VivesIm Rahmen einer Gebäuderenovierung werden die Gemeinschaftsräume im Untergeschoss ausschließlich in Büros umgebaut mit: einem großen Raum von 30 m2 zwei kleineren von 6 und 11 m2 1 WC Wichtige Hinweise: Aktivitäten wie Schönheitsinstitute, traditionelle Massagesalons, Physiotherapie oder andere Aktivitäten, die Kunden empfangen, sind nicht erlaubt. Diese Einschränkung wird gemäß den Richtlinien der Feuerwehr auferlegt, die besagen, dass diese Räumlichkeiten nicht für die Öffen...
Immobiliendetails
- Verfügbar ab
- Nach Vereinbarung



