Gewerbe mieten - Speicherstrasse 60, 9000 St. Gallen
Warum Sie diese Immobilie lieben werden
Geräumig mit Dachfenstern
Charmanter Gemeinschaftshof
Praktische Anbindung an ÖV
Besichtigung vereinbaren
Besichtigung mit Koller buchen
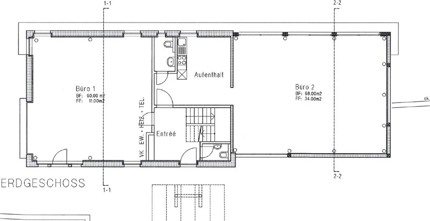
exklusive Gewerberäume im Linsebühl-Dreilindenquartier
Exklusive Gewerberäume an der Speicherstrasse 60 (in der ehemaligen „Bavaria Brauerei") sucht neue Mieter / Mieterinnen:
Allgemein
- im EG
- Total 88 m2
- Weitsicht
- sehr helle Räume
- eigene Küche mit Pausenraum
- eigene Toilette mit Waschtisch
- Abstellkammer
- grosser, schöner Vorplatz (gemeinschaftliche Nutzung)
Gewerberaum
- Total 68 m2
- sehr grosszügige Fenster mit Weitblick
- Trennwand
- Beleuchtung vorhanden
- Zugang zum Vorplatz
Weiteres
- Haltestelle "Birnbäumen" rund 1 Gehminute entfernt
Kostenaufstellung
- Nettokosten
- CHF 1’850
- Zusätzliche Kosten
- CHF 250
- Gesamtkosten
- CHF 1’850
Immobiliendetails
- Verfügbar ab
- Nach Vereinbarung



