Bürofläche mieten - Bäderstrasse 27, 5400 Baden
Warum Sie diese Immobilie lieben werden
Vollständig ausgebaut und bezugsbereit
Modernes Ambiente in ruhiger Lage
Hervorragende Anbindung an ÖV
Besichtigung vereinbaren
Besichtigung buchen
«büro- /praxisfläche an bester lage!»
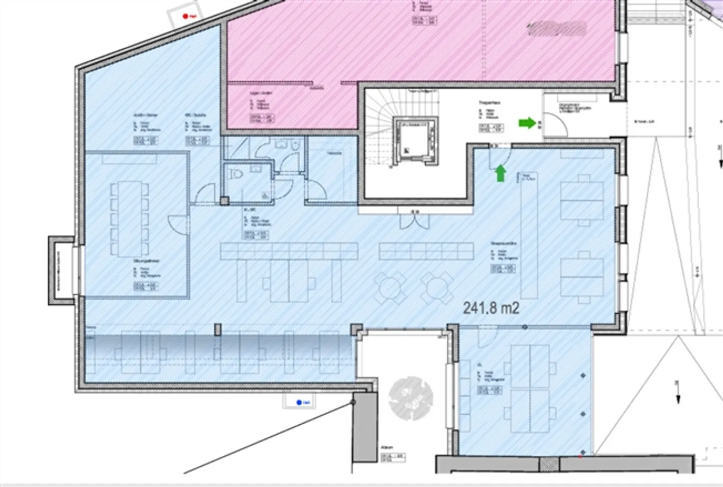
Repräsentative Büro- /Praxisfläche an bester Lage
Sind Sie auf der Suche nach einer repräsentativen Büro- /Praxisfläche an bester Lage?
Diese hellen und flexiblen Räume im Herzen des Bäderquartiers von Baden bieten Ihnen folgendes:
Fläche: 237 m2
Ausbauzustand: Die Flächen sind vollständig ausgebaut (Parkett, Grundbeleuchtung, Nasszelle, Teeküche, Sitzungszimmer, Kontrollierte Lüftung).
Bezug: Ab sofort oder nach Vereinbarung.
Lage: Die Büroflächen befinden sich an zentraler und dennoch ruhiger...
Immobiliendetails
- Verfügbar ab
- Nach Vereinbarung
- Baujahr
- 2012



