Bürofläche mieten - Rue Du Môle 2, 2000 Neuchâtel
Warum Sie diese Immobilie lieben werden
Erstklassige Lage am See
Moderne Ausstattung mit Charme
Vielseitig nutzbar für verschiedene Zwecke
Besichtigung vereinbaren
Besichtigung mit Strauss buchen
Ideale lage in der innenstadt
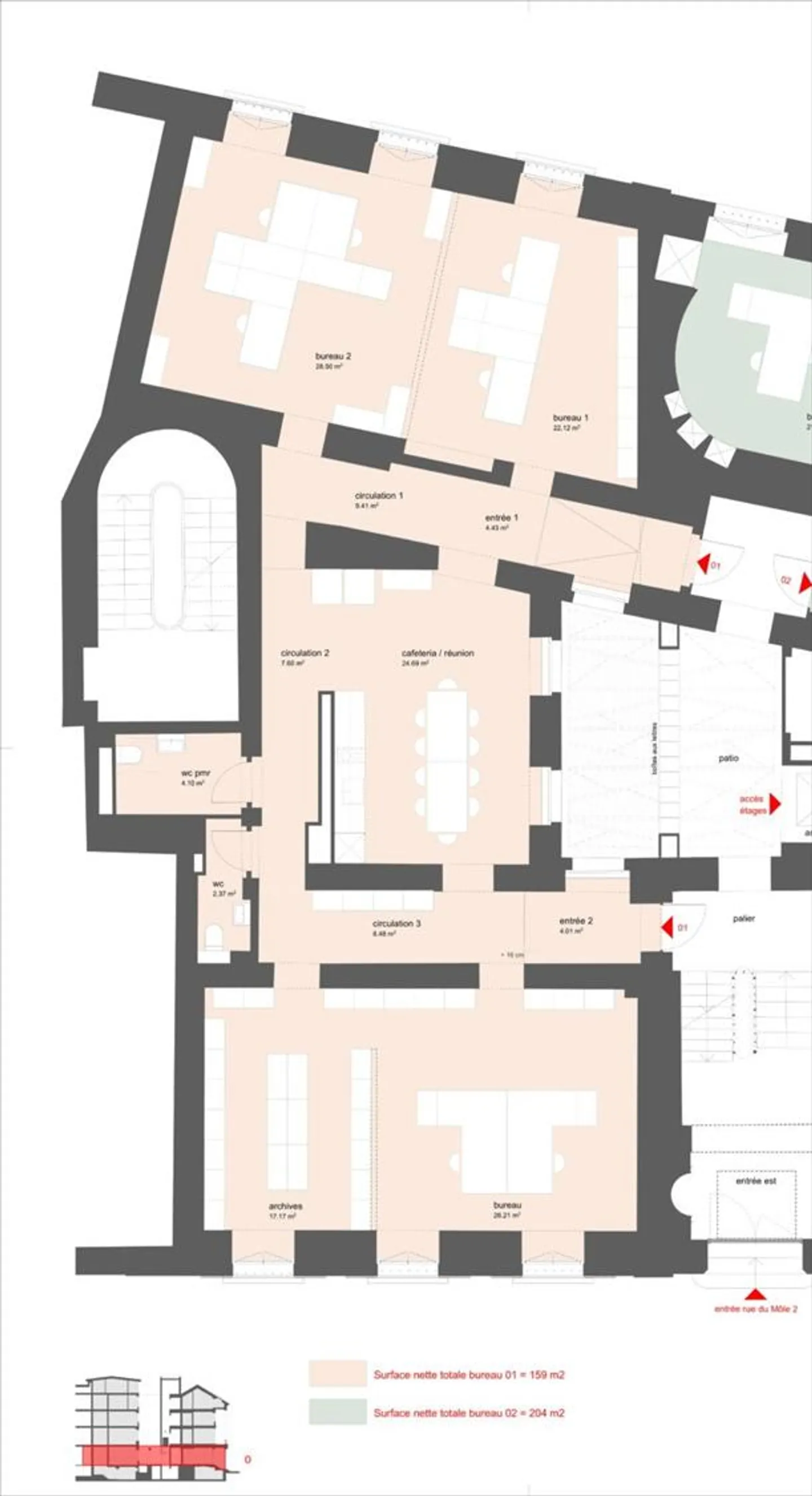
Wir haben die Freude, Ihnen eine kommerzielle Bruttofläche zur Miete in einem historischen Gebäude mit Charakter in der Innenstadt anzubieten, nur zwei Schritte vom See entfernt. Diese schöne Adresse bietet eine optimale Sichtbarkeit sowie eine optimale Erreichbarkeit (Direkter Zugang zu den öffentlichen Verkehrsmitteln, direkter Zugang zum Untergrundparkplatz vom Gebäude aus, Taxistand nur zwei Schritte entfernt).
Das Angebot besteht aus einem Ort, der eine sehr moderne Ausstattung ermöglicht,...
Immobiliendetails
- Verfügbar ab
- 01.03.2024
- Baujahr
- 1862
- Renovierungsjahr
- 2021
- Wohnfläche
- 159 m²
- Nutzfläche
- 159 m²



