Bürofläche mieten - Rue Du Môle 2, 2000 Neuchâtel
Warum Sie diese Immobilie lieben werden
Zentrale Lage im Stadtzentrum
Flexibles modernes Layout
Direkter Zugang zum Parkplatz
Besichtigung vereinbaren
Besichtigung buchen
Ideale lage im stadtzentrum
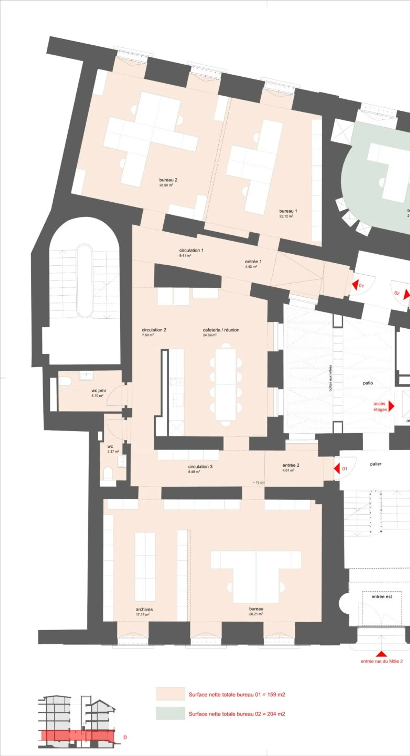
Wir freuen uns, Ihnen eine Rohfläche für Gewerbe zur Miete in einem historischen Gebäude im Stadtzentrum, nur wenige Schritte vom See entfernt, anzubieten. Diese schöne Adresse ermöglicht optimale Sichtbarkeit und Zugänglichkeit (Sofortiger Zugang zu öffentlichen Verkehrsmitteln, direkter Zugang zur Tiefgarage von innen, Taxistand nur wenige Schritte entfernt).
Das Angebot besteht aus einem Raum, der sehr moderne Arrangements ermöglicht und gleichzeitig den Charme vergangener Zeiten (Materialien)...
Immobiliendetails
- Verfügbar ab
- Nach Vereinbarung
- Baujahr
- 1862



