Bürofläche mieten - Rue Jean-Antoine-Gautier 13, 1201 Genève
Warum Sie diese Immobilie lieben werden
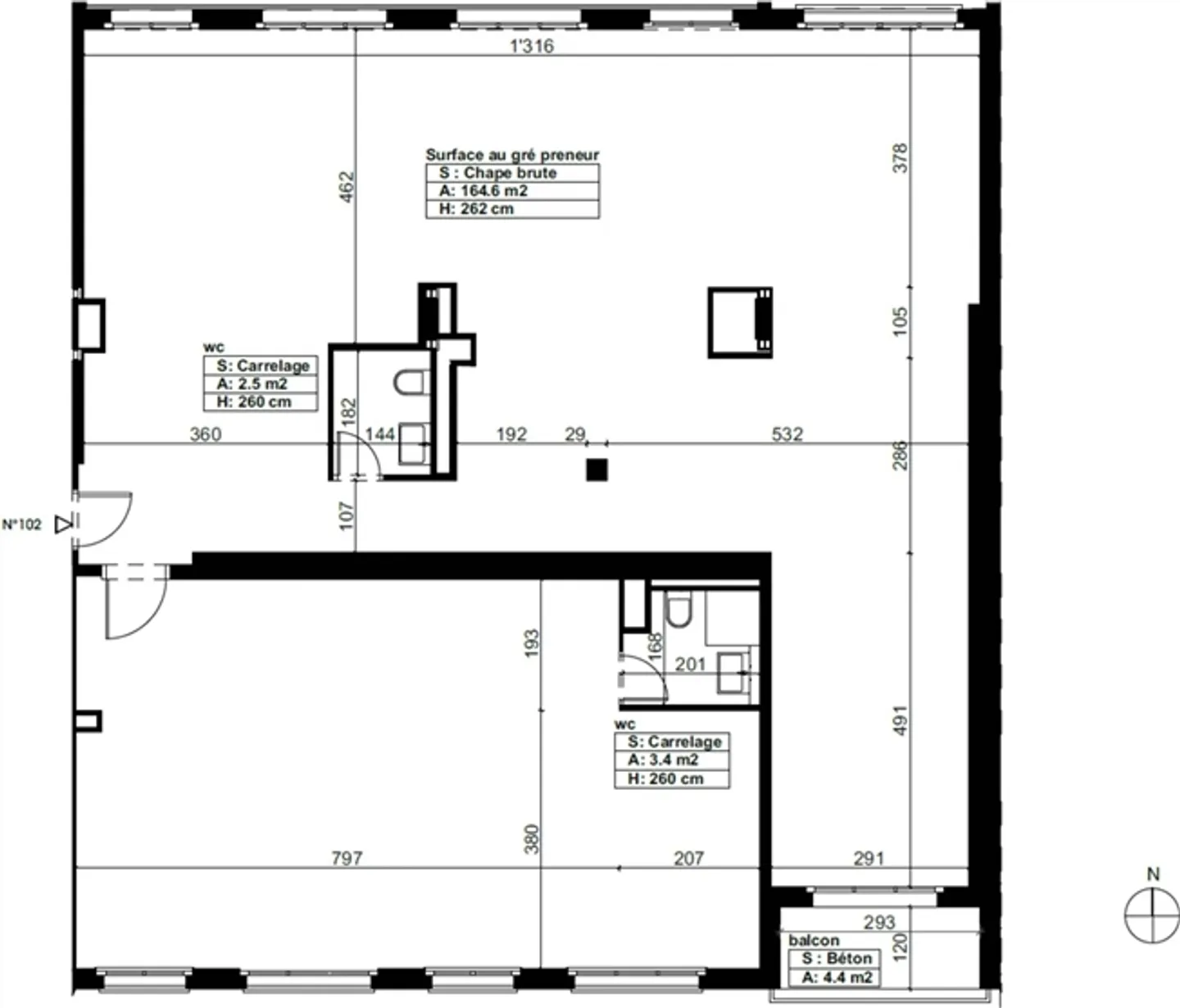
Flexible Raumaufteilung
Geräumige 180 m² Fläche
Balkon für Außenbereich
Besichtigung vereinbaren
Besichtigung buchen
«büroräume in der nähe des bahnhofs zu vermieten»
Das Hotel liegt im dynamischen Viertel Les Pâquis, nur wenige Minuten vom Bahnhof Cornavin entfernt und in der Nähe aller Annehmlichkeiten.Das Gebäude bietet eine Fläche von 180 m² im 1. Stock mit Balkon, der im Rohzustand geliefert wird und somit vollständige Flexibilität bei der Aufteilung bietet.Beschreibung der Oberflächen:- 1 Empfangsbereich- 2 offene Flächen- 1 Balkon- 2 sanitäre AnlagenMiete für den Raum: CHF 350.-/m²/Jahr + Kosten CHF 27.-/m²/JahrBesucheGregory
Immobiliendetails
- Verfügbar ab
- Nach Vereinbarung



