Mischgenutztes Gebäude mieten - Planche-Supérieure 19, 1700 Fribourg
Warum Sie diese Immobilie lieben werden
Erdgeschoss zugänglich
Nahe öffentlicher Verkehr
Erster Monat Miete gratis
Besichtigung vereinbaren
Besichtigung mit maison.work buchen
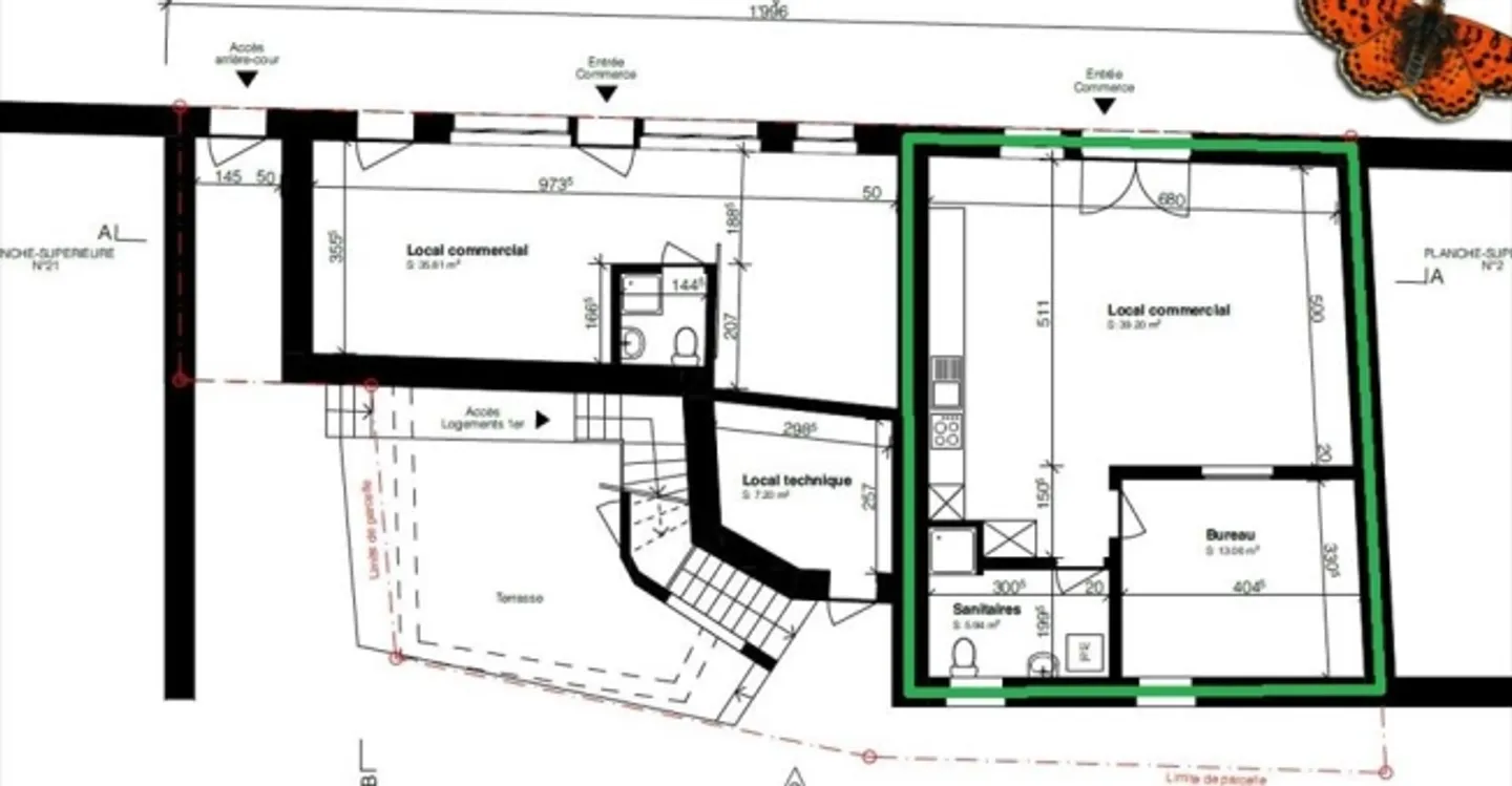
Erste Nettomiete angeboten - Ihr zukünftiges renoviertes Büro in der Unterstadt
Dieser schöne renovierte Raum ist ebenerdig zugänglich und wartet nur auf Sie
Aufgrund seiner strategischen Lage genießen Sie die Nähe zu Annehmlichkeiten und öffentlichen Verkehrsmitteln. Darüber hinaus befindet sich ein großer öffentlicher Parkplatz nur wenige Meter entfernt, Ihre Kunden und Mitarbeiter werden Ihnen nur danken
Diese Immobilie mit einer Fläche von 51 m² besteht aus:
- Schönem Hauptraum mit ausgesta...
Kostenaufstellung
- Nettokosten
- CHF 1’200
- Zusätzliche Kosten
- CHF 100
- Gesamtkosten
- CHF 1’200
Immobiliendetails
- Verfügbar ab
- Nach Vereinbarung
- Renovierungsjahr
- 2024
- Wohnfläche
- 51 m²
- Nutzfläche
- 51 m²



