Mieten Sie Ihre Büros oder Geschäfte in einem modernen und nachhaltigen Umfeld!
Das ikonische Gebäude Plugin 5 zeichnet sich durch seine elegante Holzfassade und seine Umgebung aus, die darauf ausgelegt ist, ein harmonisches Zusammenleben von Geschäften und Anwohnern zu fördern. Angrenzend an das Gebäude lädt ein großer Grünbereich zur Entspannung und zum Treffen ein.
Im Einklang mit den Werten eines beispielhaften und nachhaltigen Öko-Viertels bereichert dieses Projekt das Angebot an Wohnraum und gewerblichen Flächen innerhalb eines dynamischen Campus an den Toren von Fribourg.
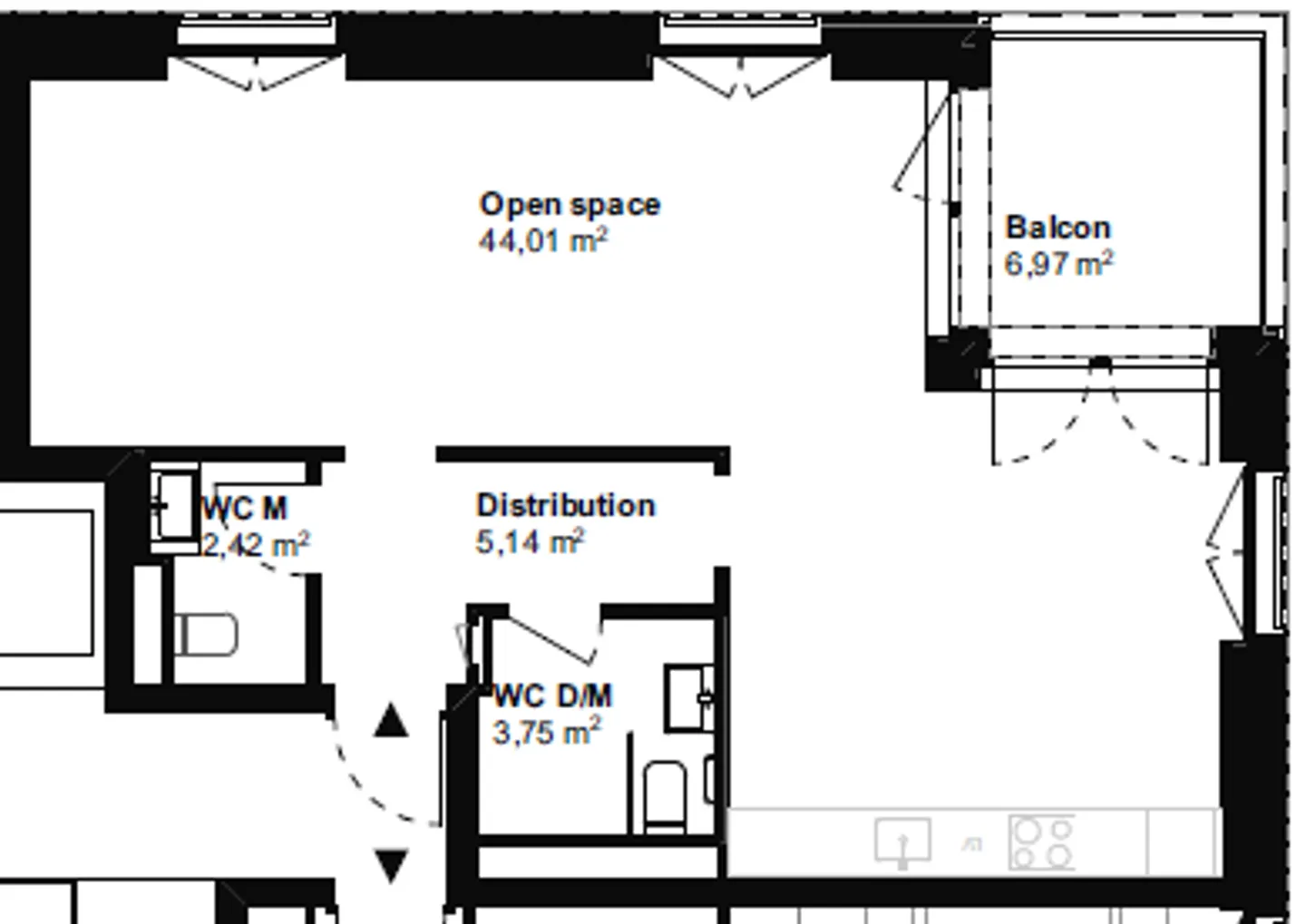
Verfügbarkeit: 2 Verwaltungs- und Gewerbeflächen von 55 m² im 1. Stock sofort oder nach Vereinbarung verfügbar.
Ideal für Büros oder die Ausübung eines freien Berufs.
Hauptmerkmale:
* Vollständige Ausstattung: Kochnische, Schrank, Trennwand, WC und Balkon * Einfache Zugänglichkeit: Gebäude ausgestattet für Menschen mit eingeschränkter Mobilität, mit Aufzug * Ideale Lage: unmittelbare Nähe zu öffentlichen Verkehrsmitteln (Linie 8 TPF), neuem Aquazentrum von Marly und Annehmlichkeiten (Geschäfte, Restaurants, Kita, Schwimmbad) * Praktische Parkplätze: Stellplätze direkt vor dem Gebäude und den Geschäftsräumen * Moderne und ökologische Ausstattung: elektrische Jalousien, Glasfaser, Fußbodenheizung, Hausautomation, Solarpanels, Fernwärme * Außergewöhnliches Umfeld: grüne und nachhaltige Umgebung, am Rande der Gérine * Wachsendes Viertel: erstes SEED-zertifiziertes Öko-Viertel des Kantons, das bis 2026 2.600 Einwohner und mehr als 170 Unternehmen vereint
Das Gebäude Plugin 5 verkörpert perfekt das Gleichgewicht zwischen Wohnraum, Gewerbeflächen und Gastronomie im Herzen eines lebendigen und innovativen Viertels.
Mietbedingungen:
* Monatliche Miete: CHF 1750. * Monatliche Nebenkosten: CHF 140.
Für weitere Informationen oder Besichtigungen kontaktieren Sie uns jetzt und seien Sie unter den Ersten, die diesen einzigartigen, modernen und inspirierenden Rahmen betreten!
Energy consumption
No dataGreenhouse gas emmissions
No dataRue Des Frères-Lumière 4
1723 Marly (FR)