Wohnung kaufen - Grenzweg 7, 5036 Oberentfelden
Warum Sie diese Immobilie lieben werden
Sonniger Balkon von 17 m²
Zwei voll ausgestattete Bäder
Rollstuhlgängiger Lift
Besichtigung vereinbaren
Besichtigung mit Nicola buchen
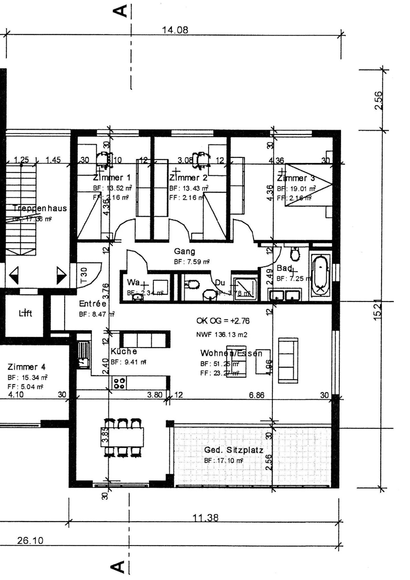
Grosszügige und gemütliche 4.5-zimmer-wohnung im 1. og
An ruhiger Lage in einem gepflegten Wohnquartier in der Nähe des Schwimmbades Entfelden erwartet Sie diese grosszügige 4.5-Zimmer-Wohnung im 1. Obergeschoss mit einer Wohnfläche von 136?m² und einem sonnigen Balkon von 17?m². Die Wohnung ist vollständig stufenlos zugänglich und somit auch ideal für Menschen mit eingeschränkter Mobilität.
Der durchdachte Grundriss trennt geschickt den privaten Bereich von den Wohnräumen: Vom Eingangsbereich führen zwei Gänge - einer zu den Schlafzimmern und Nassze...
Immobiliendetails
- Verfügbar ab
- 11.07.2025
- Zimmer
- 4.5
- Baujahr
- 2006
- Wohnfläche
- 136 m²
- Etage
- 1.



