Wohnung kaufen - 6817 Maroggia
Warum Sie diese Immobilie lieben werden
Moderne offene Küche
Whirlpool im Hauptbad
Nah an öffentlichen Verkehrsmitteln
Besichtigung vereinbaren
Besichtigung mit Stabile buchen
Wunderschöne 3.5-Zimmer-Wohnung in bevorzugter Lage in Maroggia
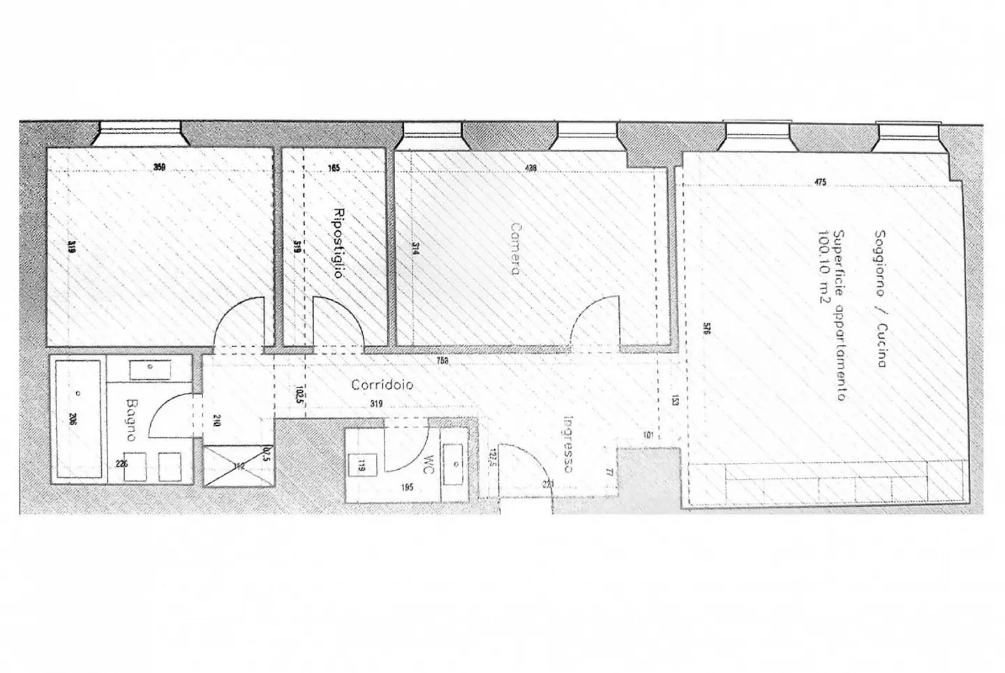
Große 3.5-Zimmer-Wohnung von ca. 115 m², kürzlich komplett renoviert und ideal auch als Renteneinkommen, eventuell auch in der Form von AirBnB, im zweiten und letzten Stock eines eleganten Wohnhauses mit Aufzug und behindertengerechtem Zugang, in malerischer und entspannter Lage in der Nähe der wunderschönen Spaziergänge am Seeufer in einem gut erschlossenen Gebiet in der Gemeinde Maroggia, nur 10-15 Minuten von Lugano und Mendrisio entfernt.
Die Wohnung besteht aus:
Eingang durch eine Panzertür...
Immobiliendetails
- Verfügbar ab
- 26.01.2022
- Zimmer
- 3.5
- Baujahr
- 1987
- Wohnfläche
- 100 m²
- Nutzfläche
- 115 m²
- Etage
- 2.


