Wohnung kaufen - 6817 Maroggia
Warum Sie diese Immobilie lieben werden
Atemberaubender Parkblick
Hohe Decken & hell
In der Nähe von Strandbädern
Besichtigung vereinbaren
Besichtigung buchen
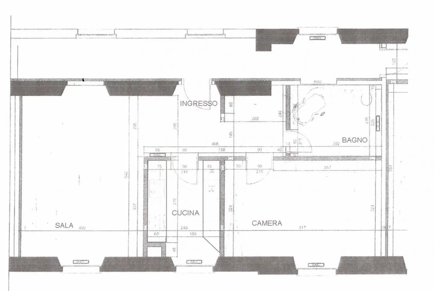
Geräumige 2.5 zimmer in einer prestigeträchtigen wohnanlage in maroggia
Geräumige und moderne 2,5-Zimmer-Wohnung von ca. 75 m² Bruttofläche, gelegen im 2. Stock von 3 in einem prestigeträchtigen Gebäude, das 2008 vollständig renoviert wurde, mit nur 10 Einheiten, hauptsächlich für den Urlaub, in einem Wohngebiet der Gemeinde Maroggia.
Die Wohnung zeichnet sich durch hohe Decken und hervorragende Helligkeit aus, die durch die Fenster gegeben ist, von denen aus man einen schönen Blick auf den Park vor der Residenz genießen kann, und besteht aus einem großen Eingangsber...
Immobiliendetails
- Verfügbar ab
- Nach Vereinbarung
- Zimmer
- 2.5
- Baujahr
- 1900
- Wohnfläche
- 75 m²
- Nutzfläche
- 75 m²
- Etage
- 2.




