1 / 5

Wohnung kaufen - Buchenstrasse 64, 9042 Speicher

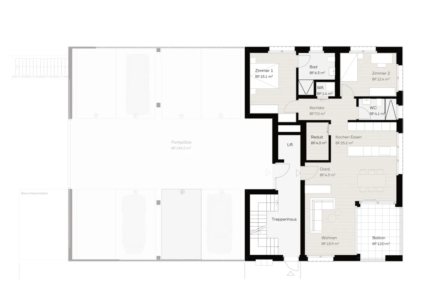
3.5 Zimmer • 96 m²
CHF 795’000.-
CHF 8’281 m²

Warum Sie diese Immobilie lieben werden

Geräumiger Balkon 12 m²

Barrierefreier Zugang

Individuell gestaltbare Innenräume

Besichtigung vereinbaren

Besichtigung mit UrbanHome buchen

UrbanHome
HEV Verwaltungs AG

Willkommen an der Buchenstrasse 64 - Ihr neues Zuhause in naturnaher Umgebung

Mit dem Neubauprojekt Buchen 64 entsteht eine Wohnbaute mit fünf hochwertigen Wohneinheiten auf 2 Geschossen und einem Dachgeschoss. Ein zentrales Treppenhaus mit Liftanlage, welches direkt neben der Garage liegt, erschliesst alle Wohneinheiten und Nebenräume komfortabel und barrierefrei. Die gemeinsame Garage zählt acht gedeckte Parkplätze sowie einen Aussenplatz für Besucher.

Umgeben von Hecken und Bäumen lädt diese ...

Immobiliendetails

Verfügbar ab
Nach Vereinbarung
Zimmer
3.5
Wohnfläche
96

Agentur

HEV Verwaltungs AG
Ref: 7543901
Online seit
03/05/2025
vor 6 Monaten

Standort

Buchenstrasse 64, 9042 Speicher

Quellen