Wohnung kaufen - Jupiterstrasse 3, 3015 Bern
Warum Sie diese Immobilie lieben werden
Moderne Badrenovierung
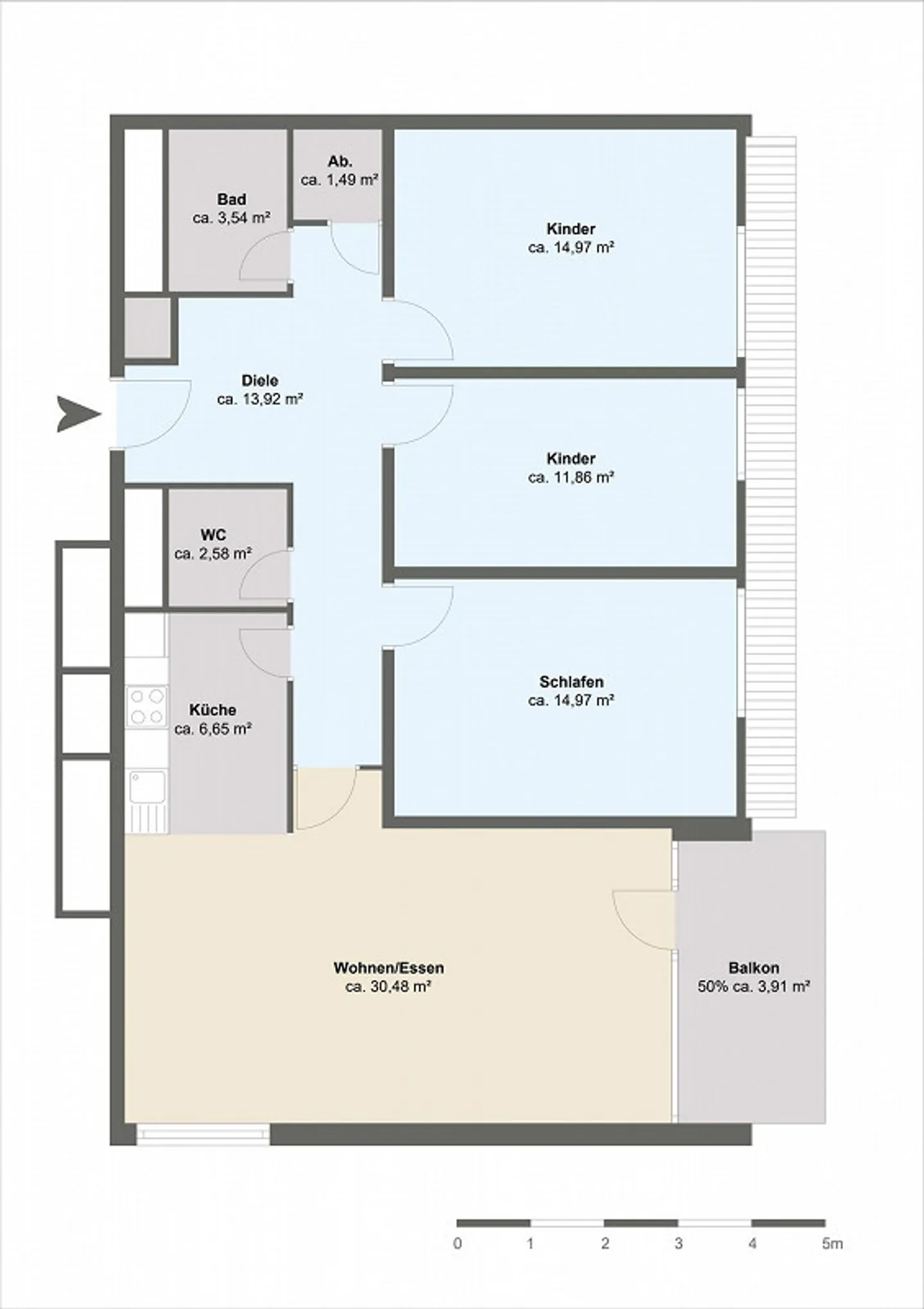
Geräumiger familienfreundlicher Grundriss
Nahe an öffentlichen Verkehrsmitteln
Besichtigung vereinbaren
Besichtigung mit Krebs buchen
Familienwohnung
Familienfreundliche 4.5-Zimmer-Wohnung zu verkaufen
Diese charmante Wohnung aus dem Baujahr 1974 wurde laufend unterhalten und befindet sich in einem guten Zustand.
Der letzte Ausbauschritt betraf den modernen Dusch-/Toilettenraum. Der Parkettboden stammt aus dem Jahr 2003, und im Jahr 2020 wurden hochwertige 4B-Fenster eingebaut.
Die Wohnung wurde bis vor Kurzem noch bewohnt und ist ab sofort bezugsbereit. Der Grundriss der Wohnung ist äusserst familienfreundlich, d.h. grosse Schlafzimmer, geräu...
Immobiliendetails
- Verfügbar ab
- Nach Vereinbarung
- Zimmer
- 4.5
- Renovierungsjahr
- 1974
- Wohnfläche
- 102 m²
- Etage
- 5.
- Geschosse
- 23




