1 / 19

Wohnung kaufen - 1920 Martigny

3.5 Zimmer • 71 m² • 3. Etage
CHF 455’600.-
CHF 6’157 m²

Warum Sie diese Immobilie lieben werden

Offene Küche mit Loggia

Zugang zur Garten-Terrasse

Hochwertige MINERGIE-Standards

Besichtigung vereinbaren

Besichtigung buchen

Diese Beschreibung wurde automatisch von Französisch übersetzt.

3,5-zimmer-wohnung im dachgeschoss in martigny

Wunderschöne 3,5 Zimmer.

Die Lage ermöglicht es Ihnen, die umliegende Grünfläche und die Ruhe zu genießen.

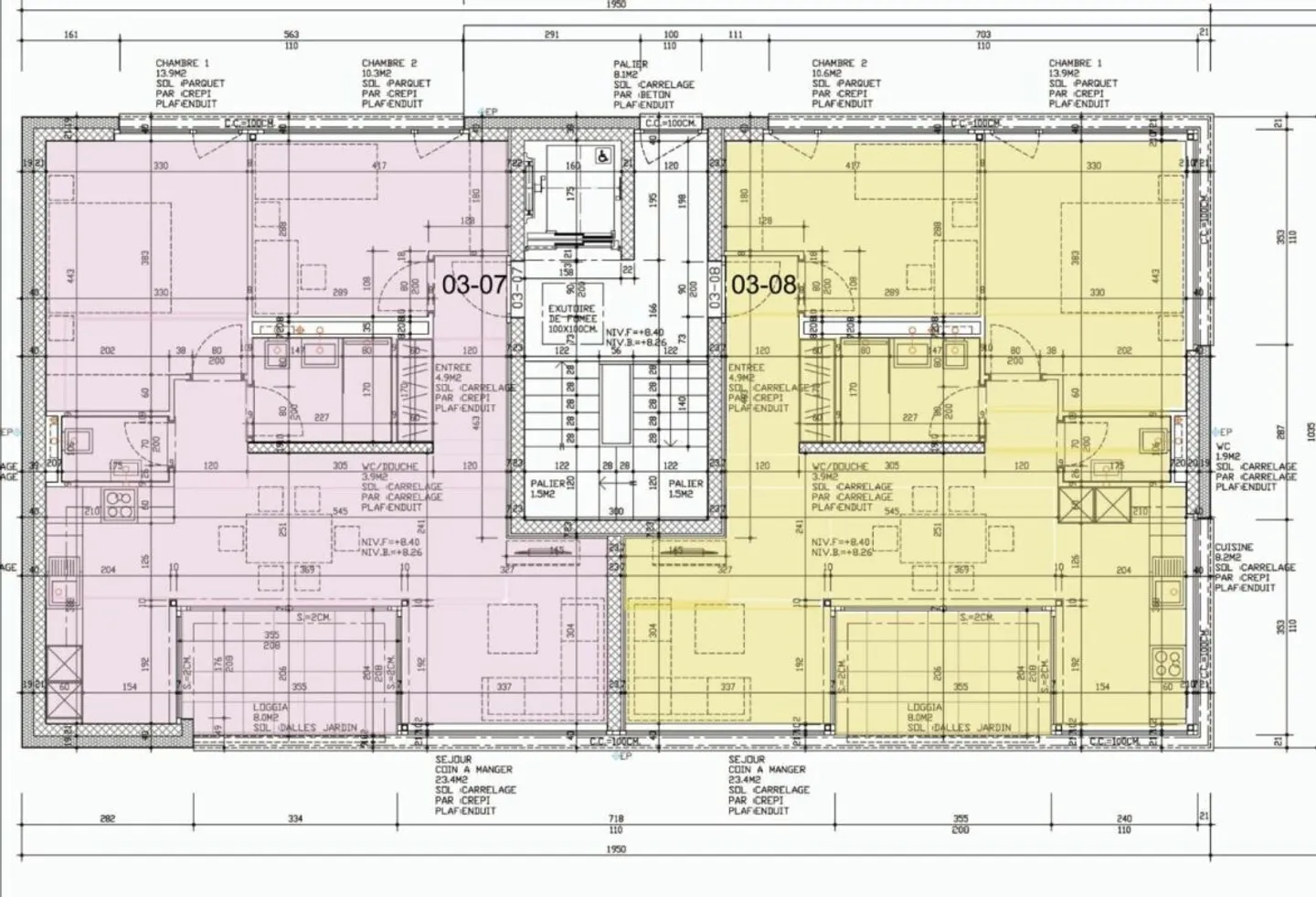
Diese 3,5-Zimmer-Wohnung mit 74 m2 (LOT 7) ist wie folgt zusammengesetzt:

- Eingangsbereich mit Einbauschrank

- Offene Küche

- Loggia von 8m2

- Wohnzimmer mit Zugang zum Garten und zur Terrasse

- 2 Schlafzimmer

- Badezimmer mit WC

- Duschraum mit WC

- Keller von 4,9 m2

Überdachter Außenparkplatz zusätzlich zum Preis: CHF 22'000.-.

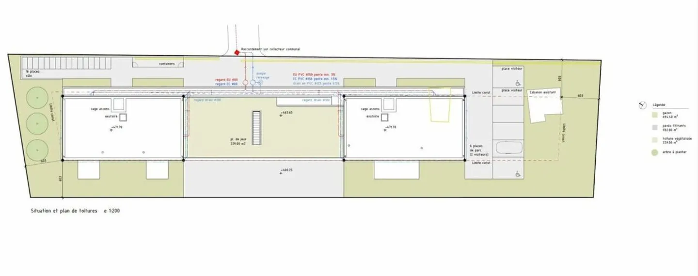
16 Plätze für Fahrräder und Motorräder.

<< Hochwertige Qualit...

Immobiliendetails

Verfügbar ab
Nach Vereinbarung
Zimmer
3.5
Baujahr
2025
Wohnfläche
71
Nutzfläche
74
Etage
3.

Eigenschaften

Garage
Neubau

Agentur

C-Service Promotions Sàrl
C-Service Promotions Sàrl
Adresse:Avenue de la Gare 36, 1870 Monthey
(19 reviews)
Ref: 9adc1ca8-a8f4-11f0-89d7-069ae14c7a06
Online seit
15/10/2025
vor 14 Stunden

Standort

1920 Martigny