Neue Villa nach Plan in einem grünen Raum
Warum Sie diese Immobilie lieben werden
Exklusives grünes Grundstück
Anpassbare Innenräume
Landschaftliche Aussicht
Besichtigung vereinbaren
Besichtigung mit Synergimmo buchen
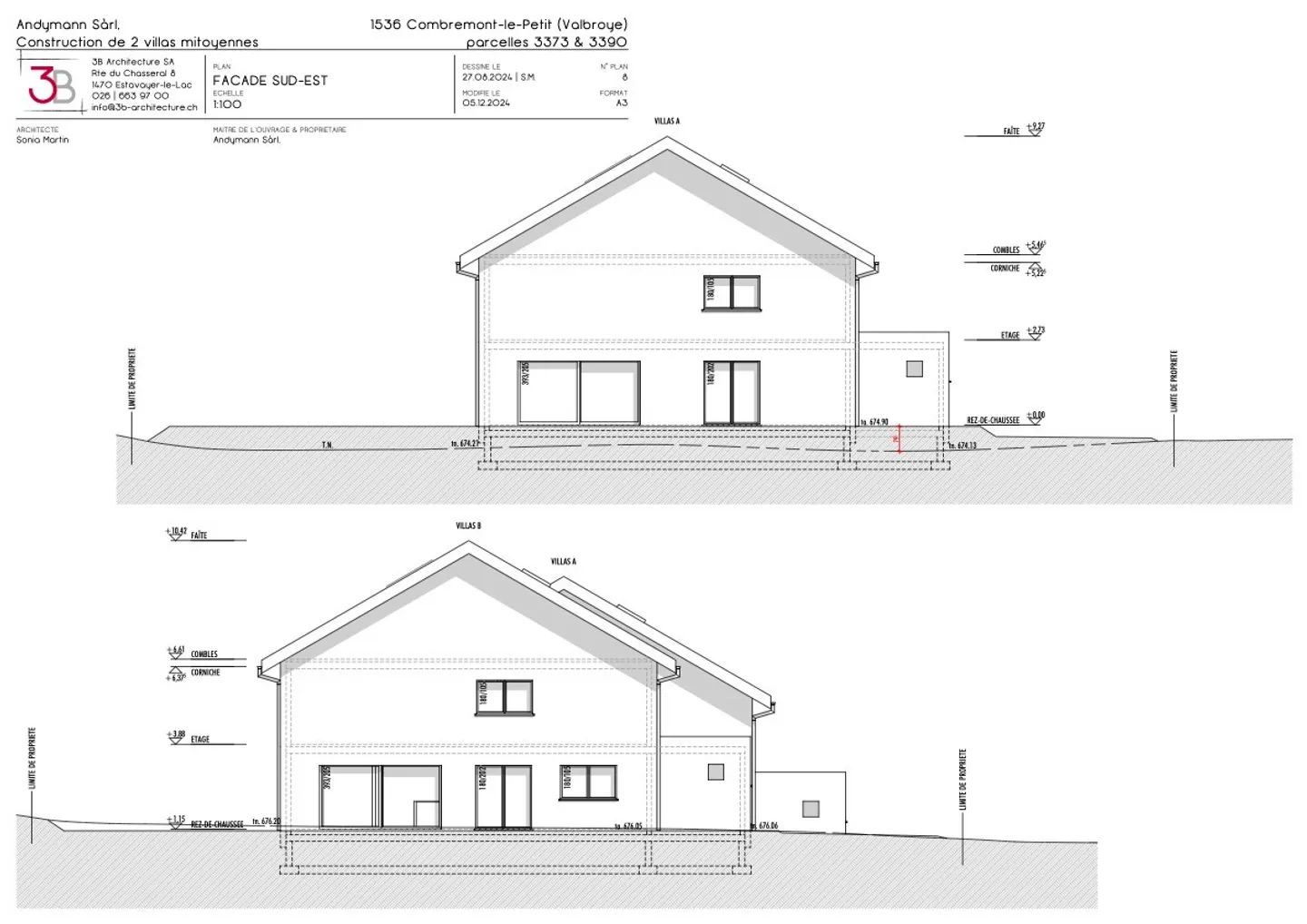
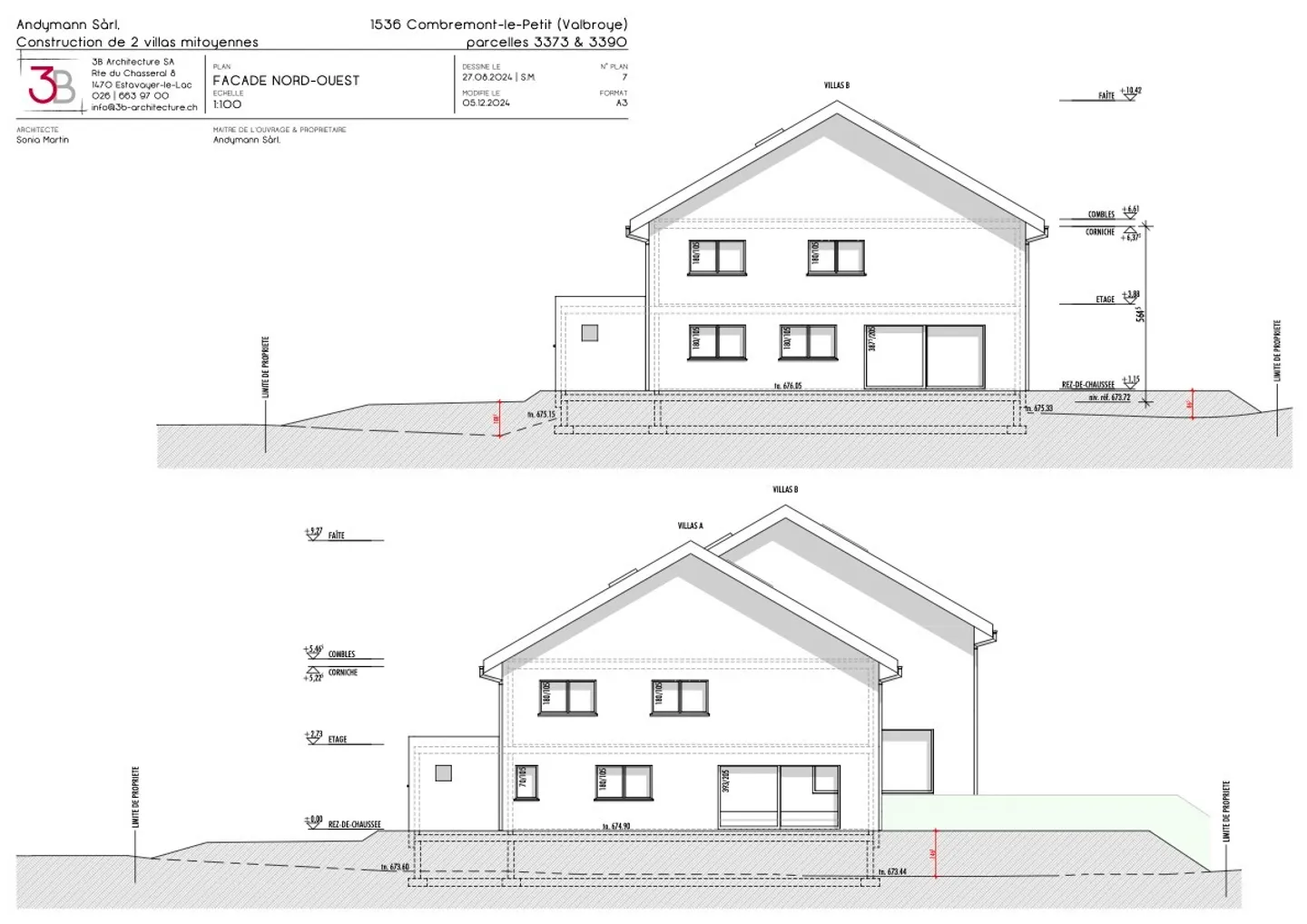
Architektenhaus Doppelhaushälfte mit 4,5 oder 5,5 Zimmern und einem exklusiven Grundstück von 391 m2 oder 360 m2 in Combremont-le-Petit.
DIE VORTEILE AUF EINEN BLICK
- Architektenhaus
- Traditioneller Bau
- Maßgeschneiderte Innenräume
- Ländliche und natürliche Umgebung
- Unverbaute Aussicht
- 32m2 zusätzliche Wohnfläche optional...
LAGE
Das charmante Dorf Combremont im Bezirk Broye liegt im Kanton Freiburg in unmittelbarer Nähe zu Estavayer-le-Lac und Payerne:
DAS HAUS
Das vorgestellte Modell (Villa B) bietet große...
Immobiliendetails
- Verfügbar ab
- Nach Vereinbarung
- Zimmer
- 5.5
- Baujahr
- 2027
- Wohnfläche
- 132 m²
- Nutzfläche
- 215 m²
- Grundstücksfläche
- 391 m²




