1 / 12

Bauland kaufen - 1920 Martigny

2230 m²
CHF 2’500’000.-
CHF 1’121 m²

Warum Sie diese Immobilie lieben werden

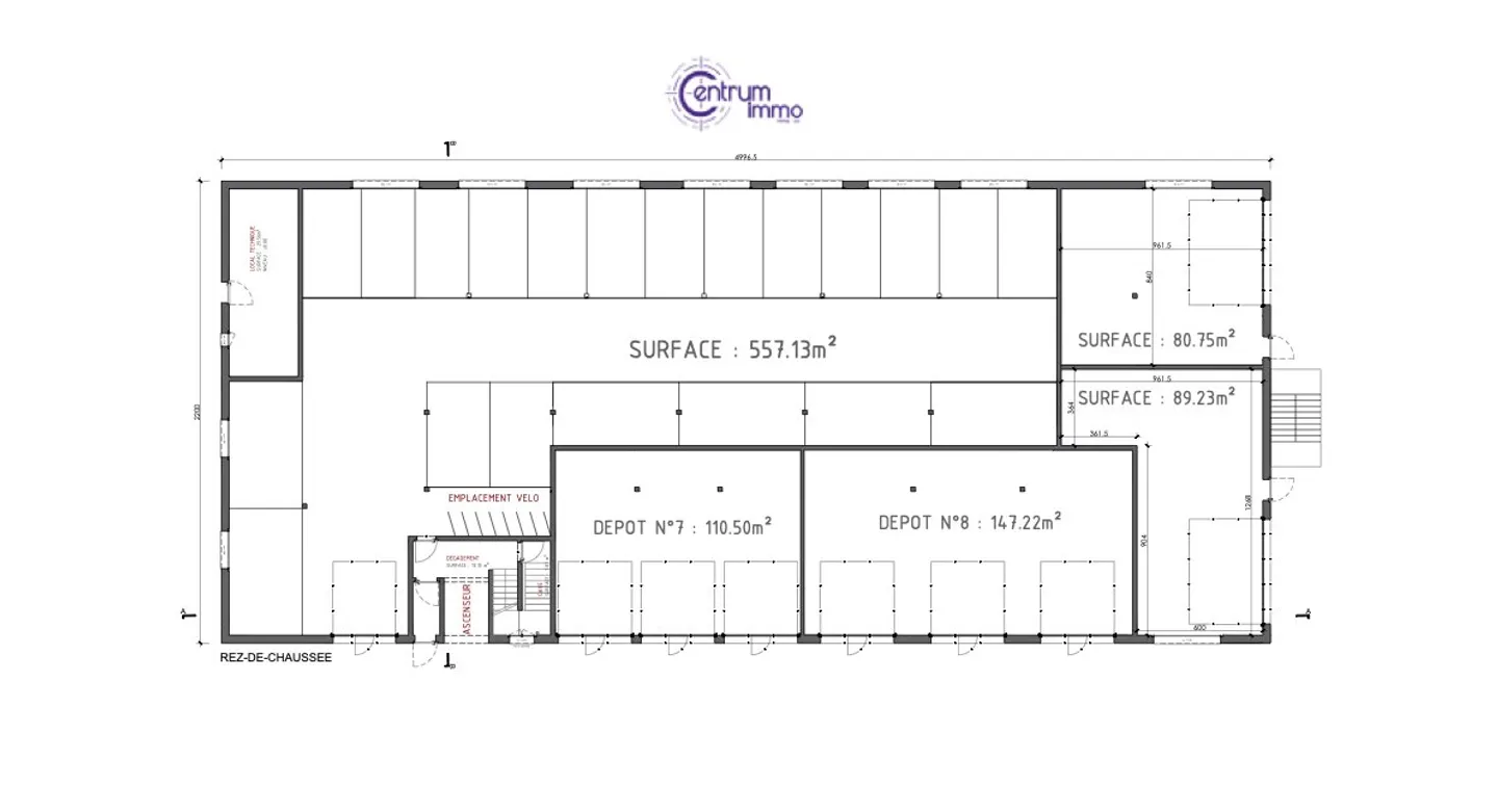
28 modulare Einheiten verfügbar

Anpassbare Layout-Optionen

Parkplätze inklusive

Besichtigung vereinbaren

Besichtigung mit Mike buchen

Mike PRÉLAZ
Centrum Immo
Diese Beschreibung wurde automatisch von Französisch übersetzt.

Martigny: großartiges projekt für eine handelshalle

Großartiges Projekt für eine Handelshalle mit 28 Modulen, die für Lager, Büros und Parkplätze vorgesehen sind. Modulare Pläne nach den Wünschen des Mieters. Frei von jeglichen Mandaten.

Immobiliendetails

Verfügbar ab
Nach Vereinbarung
Wohnfläche
2230
Nutzfläche
2230

Eigenschaften

Neubau

Agentur

Centrum Immo
Centrum Immo
Adresse:Rue de la Plaine 25, 1400, Yverdon-les-Bains, CH
Mike PRÉLAZ
Ref: 86169312
Online seit
21/09/2025
vor 27 Tagen

Standort

1920 Martigny