Guyan + Co. AG
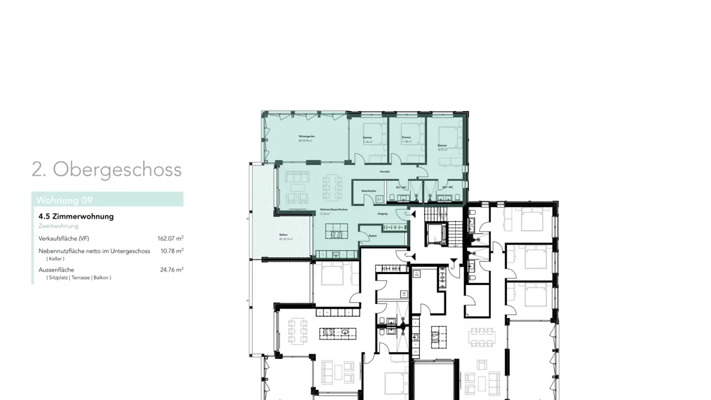
4.5 Zimmer • 110 m² • Wohnung
Promenade 47, 7270 Davos Platz
Atemberaubende Bergpanoramen
Moderne Gebäudeautomation
Zentrale Lage an der Promenade
CHF 2'700'000
CHF 24'545 m²

Guyan + Co. AG
Wohnung kaufen
Promenade 47, 7270 Davos Platz
4 1/2-ZW ATTIKA NEUBAU HAUS MOROSANI, NR. 5.02 (Zweitwohnung)
4.5 Zimmer • 110 m² • Wohnung
Atemberaubende Bergpanoramen
Moderne Gebäudeautomation
Zentrale Lage an der Promenade
CHF 2'700'000
CHF 24'545 m²