

Sfoglia tutti gli annunci di case di 5 locali in vendita a S-chanf

Attualmente ci sono 2 case di 5 locali in vendita a S-chanf. Il 50% degli case di 5 locali (1) attualmente sul mercato sono online da più di 3 mesi. Se desiderate comprare una casa di 5 locali nel Canton Grigioni, potete consultare anche i comuni vicini a S-chanf, come Davos, Zernez e Zuoz (7524).
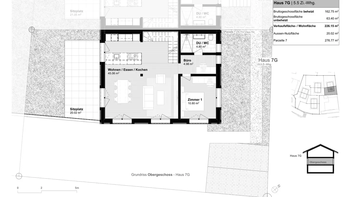
Il prezzo medio di una casa di 5 locali attualmente in vendita è di CHF 1’574’933. Il prezzo di vendita dell' 80% degli alloggi sul mercato è compreso tra CHF 538’268 e CHF 3’887’492. Il prezzo medio al mq a S-chanf è di CHF 12’417.
Il quartiere più costoso per comprare una casa di 5 locali a S-chanf è 7525 S-chanf con un prezzo medio al mq di CHF 13’249. Puoi anche trovare case di 5 locali di lusso in vendita a Cinuos-chel (7526) a CHF 10’515 al m².