

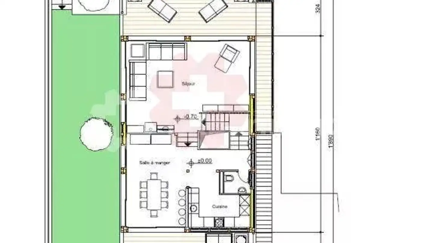
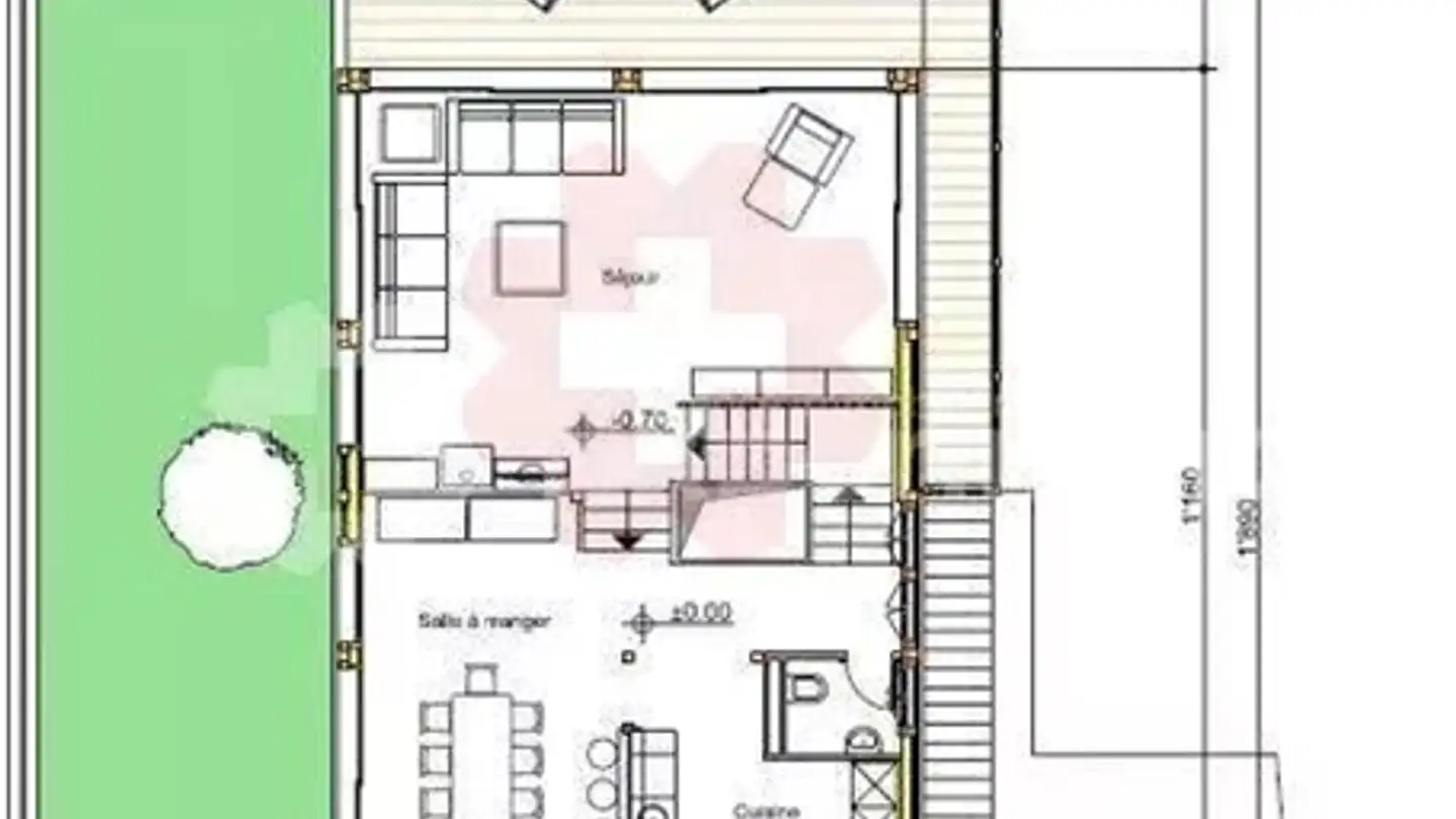
Sfoglia tutti gli annunci di case di 6 locali in vendita a Haute-Nendaz (1997), e perfeziona la tua ricerca tra 25 offerte

Attualmente ci sono 47 case di 6 locali in vendita a Haute-Nendaz (1997). Il 34% degli case di 6 locali (16) attualmente sul mercato sono online da più di 3 mesi.
Il prezzo medio di una casa di 6 locali attualmente in vendita è di CHF 1’584’935. Il prezzo di vendita dell' 80% degli alloggi sul mercato è compreso tra CHF 801’372 e CHF 3’543’843. Il prezzo medio al mq a Haute-Nendaz (1997) è di CHF 7’985.