Sfoglia tutte le offerte di affitto commerciale a Le Lignon (1219), e perfeziona la tua ricerca tra 30 annunci.
Zimmermann Immobilier
381 m² • Spazio ufficio
Chemin Du Château-Bloch, 1219 Le Lignon
Betterhomes Schweiz AG
Spazio ufficio
Passerelle Du Lignon, 1219 Le Lignon
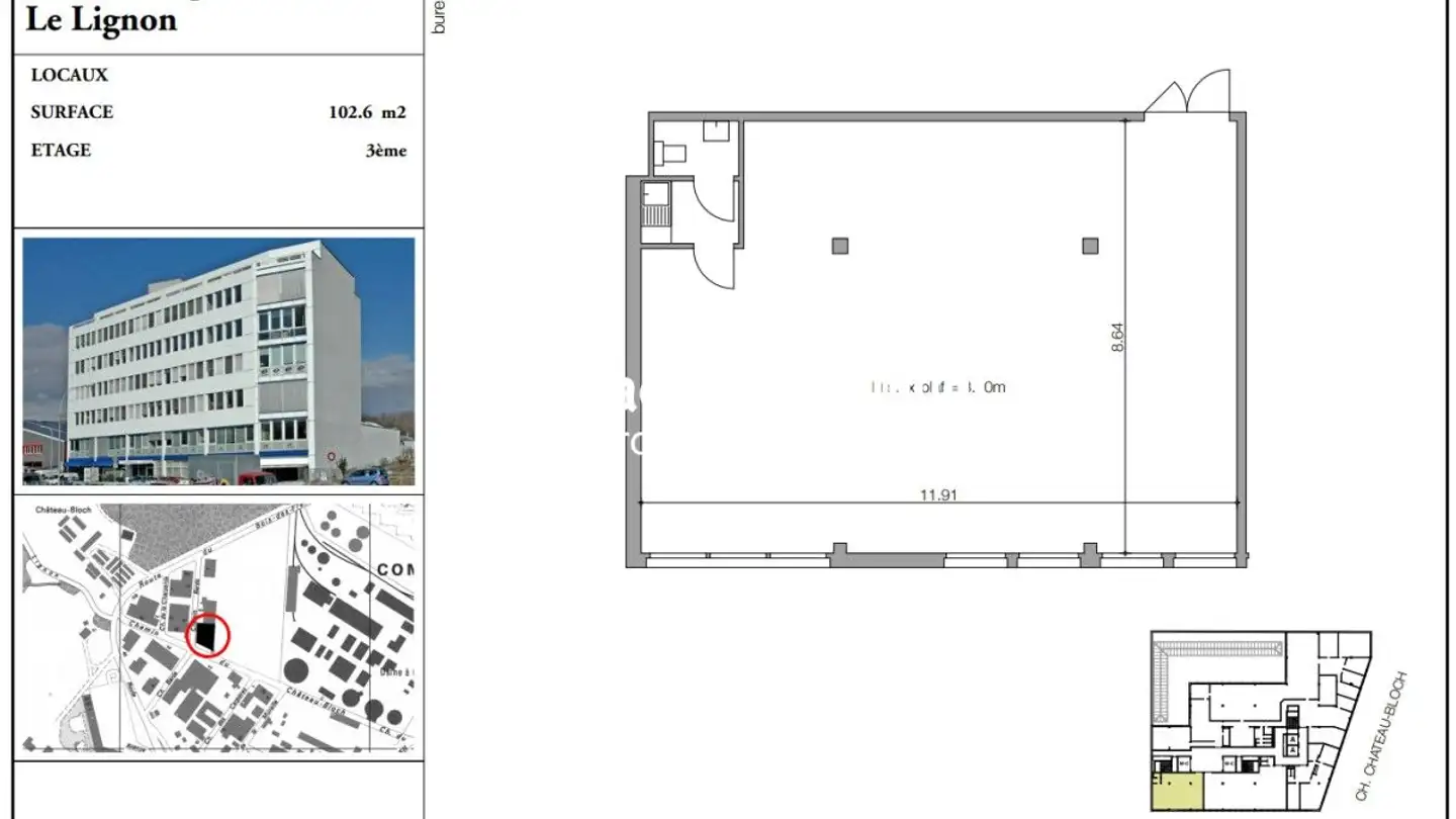
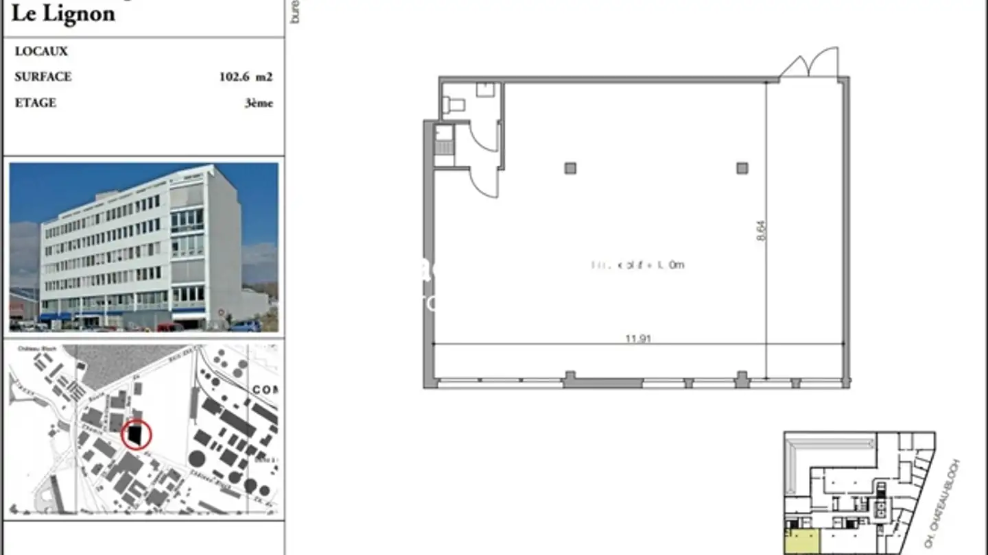
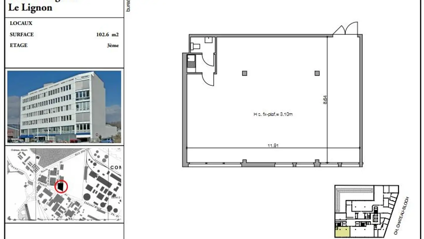
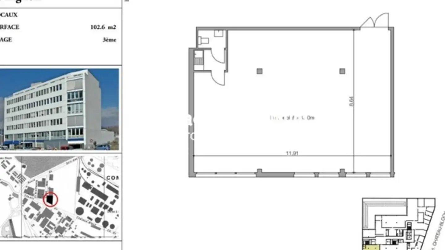
1219 Le Lignon
Nessell SA
570 m² • Spazio ufficio
COMPTOIR IMMOBILIER SA CIREG
114 m² • Commerciale
Chemin Du Château-Bloch 10, 1219 Le Lignon
BARNES Commercial Realty SA
290 m² • Spazio ufficio
Chemin Du Château-Bloch 11, 1219 Le Lignon
BETTERHOMES (Suisse) SA Etoy VD
4 stanze • Spazio ufficio
Avenue Du Lignon, 1219 Le Lignon
GEROFINANCE - RÉGIE DU RHÔNE SA
Garage
Avenue Du Lignon 7, 1219 Le Lignon
435 m² • Spazio ufficio
Gérance Immobilière Municipale
Spazio di archiviazione
Chemin De La Muraille 9, 1219 Le Lignon
maison.work
Comptoir Immobilier Genève
61 m² • Commerciale
Avenue Du Lignon 41, 1219 Le Lignon
290 m² • Commerciale
526 m² • Commerciale
350 m² • Commerciale
147 m² • Spazio ufficio
Nessell
570 m² • Commerciale
AFFAIRES TRANSACTIONS SARL
4 stanze • Commerciale