Wohnung mieten - Via Orino, 6713 Malvaglia
Warum Sie diese Immobilie lieben werden
Geräumiger Balkon von 23m²
Waschmaschine in der Wohnung
Zwei Außenparkplätze vorhanden
Besichtigung vereinbaren
Besichtigung mit Gabriella buchen
Zu vermieten 4.5 zimmer in malvaglia
Zu Vermieten 4.5 Zimmer in Malvaglia
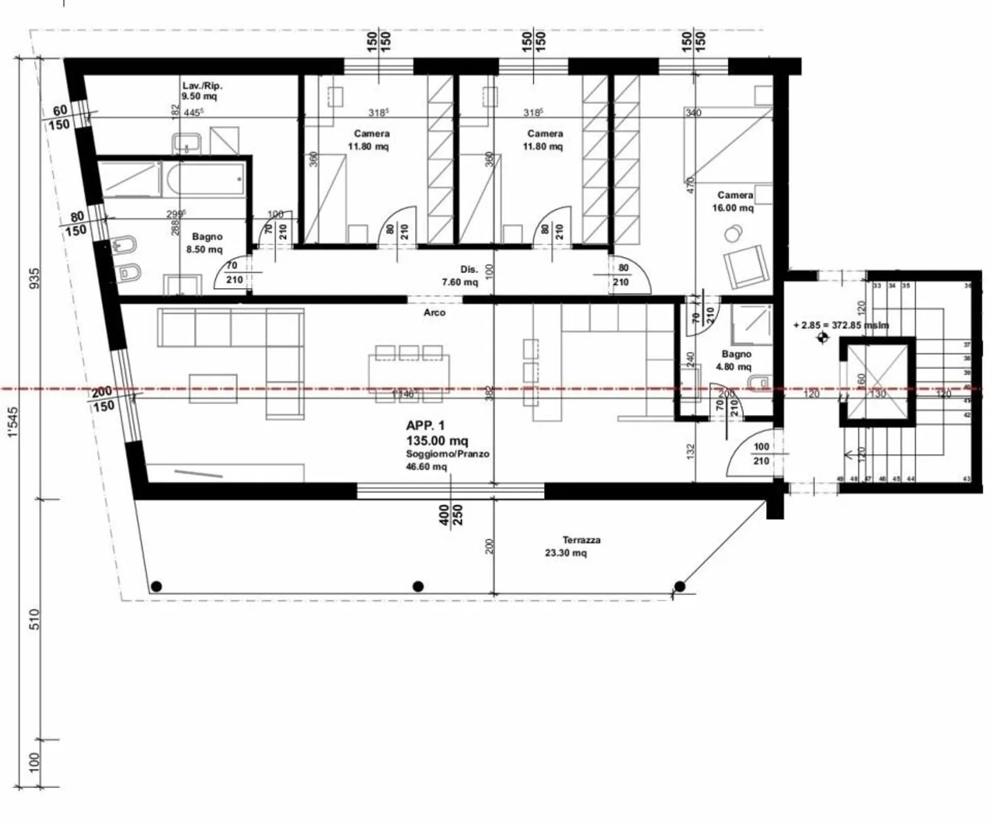
In Malvaglia, in der Nähe aller wichtigen Dienstleistungen, bieten wir eine moderne 4.5-Zimmer-Wohnung (135m²) im ersten Stock mit Balkon, eigener Waschküche in der Wohnung und zwei Außenparkplätzen zur Miete an.
Kurzbeschreibung:
-Eingangsbereich
-Wohnzimmer
-Küche mit Durchgang zum Wohnzimmer
-Balkon mit Südausrichtung (23m²)
-Schlafzimmer
-Badezimmer mit Dusche
-Zimmer
-Zimmer
-Badezimmer mit Badewanne, Duschkabine
-Eigene Waschküche mit Waschmaschine/Trockner inklusi...
Kostenaufstellung
- Nettokosten
- CHF 1’600
- Zusätzliche Kosten
- CHF 200
- Gesamtkosten
- CHF 1’600
Immobiliendetails
- Verfügbar ab
- 10.10.2025
- Zimmer
- 4.5
- Baujahr
- 2023
- Wohnfläche
- 135 m²
- Nutzfläche
- 135 m²
- Etage
- 1.
- Geschosse
- 2



