Wohnung mieten - Talacker, 8259 Kaltenbach
Warum Sie diese Immobilie lieben werden
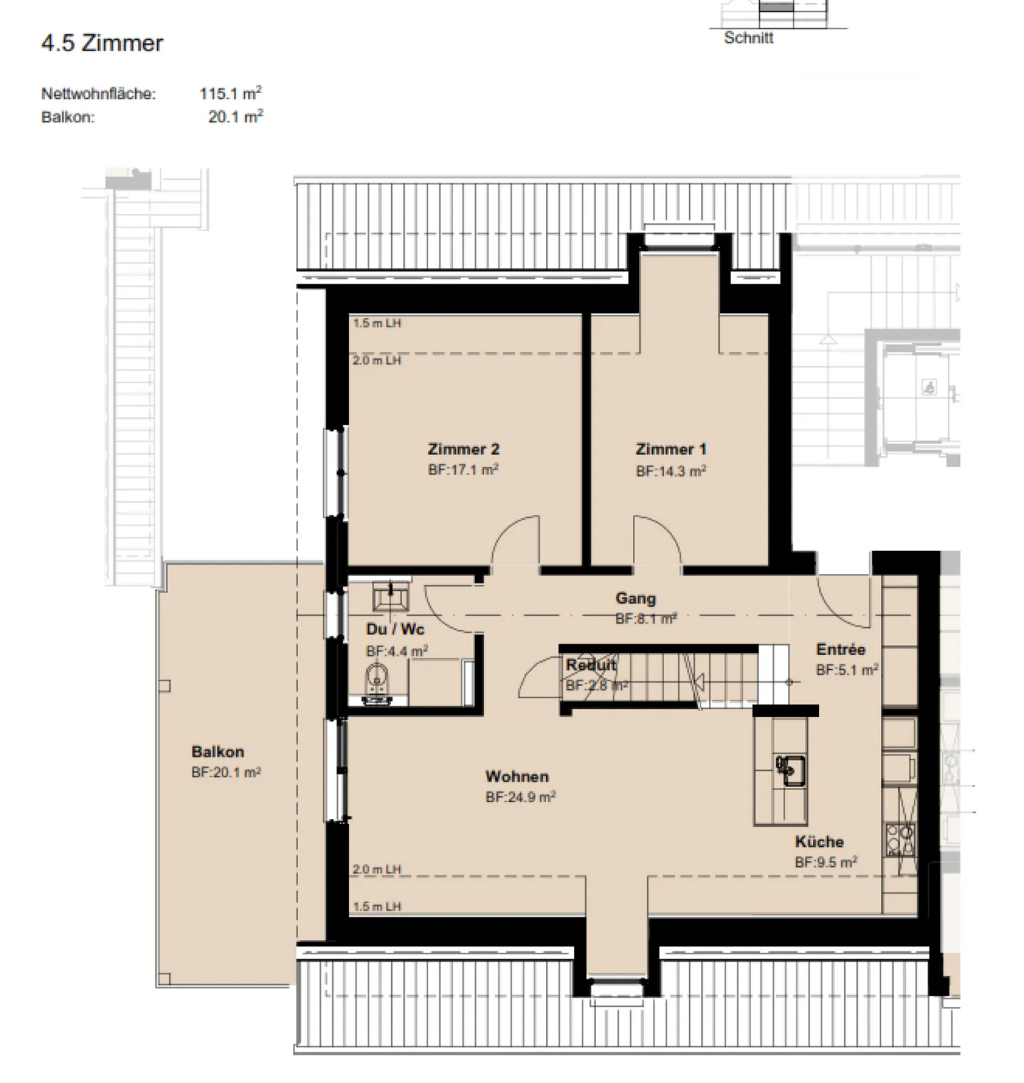
Grosser Balkon 20m²
Offene Küche mit Insel
E-Mobilitätsanschlüsse vorhanden
Besichtigung vereinbaren
Besichtigung buchen
Helle moderne 4.5-maisonette dachwohnung
Wir vermieten per 01.12.2025 oder nach Vereinbarung diese grosszügige und moderne 4.5-Zimmer Maisonette-Dachwohnung im 2. Obergeschoss im Talacker 15 in Kaltenbach.
Die Wohnung bietet Ihnen die folgenden Vorzüge:
* offene Küche mit Arbeitsinsel
* kleine offene Galerie
* Bad & Toilette im Dachgeschoss
* Waschmaschine & Tumbler
* Separate Dusche mit WC
* grosser Balkon (20m2)
* Stromanschlüsse in Tiefgarage, E-Mobilität möglich
2 Einstellplätze (mit Stromanschluss!) können für je 125.00/Monat dazu ...
Immobiliendetails
- Verfügbar ab
 - Nach Vereinbarung
 - Zimmer
 - 4.5
 - Badezimmer
 - 2
 - Etage
 - 2.
 



