Wohnung mieten - Schönmattstrasse, 6034 Inwil
Warum Sie diese Immobilie lieben werden
Helle Zimmer mit Bergblick
Elegante Küche mit Granit
Grosszügiger Garten mit Pergola
Besichtigung vereinbaren
Besichtigung buchen
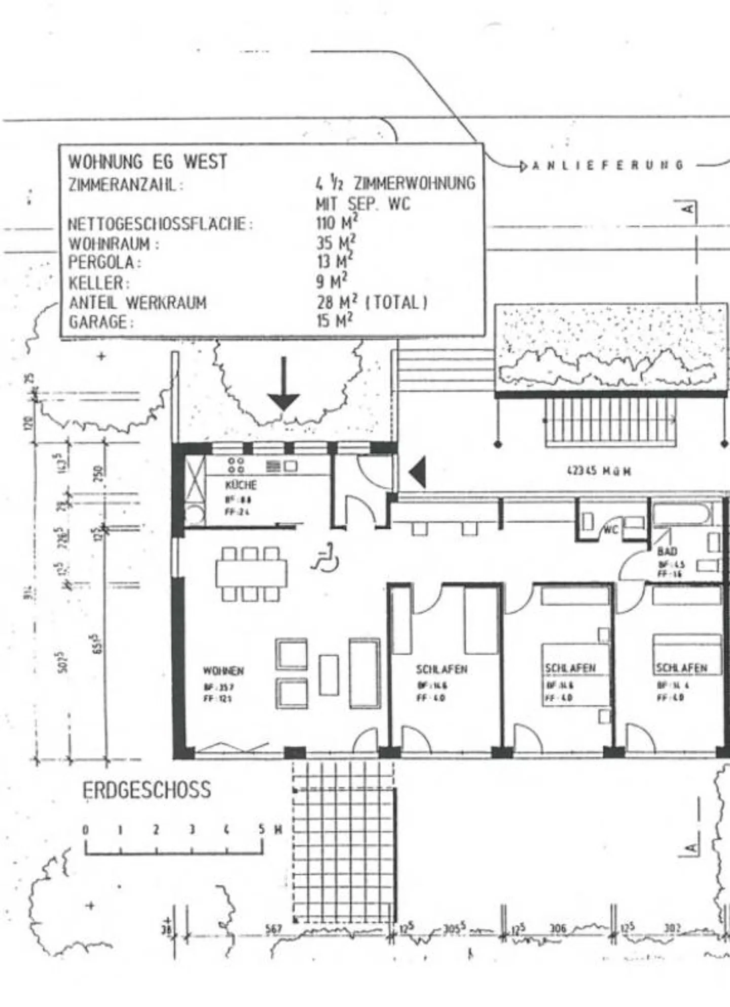
Grosszügige 4.5-zimmerwohnung mit pergola
Wir vermieten per 1. April 2026 oder nach Vereinbarung eine lichtdurchflutete 4.5-Zimmerwohnung mit Gartensitzplatz in einem 5-Familien Haus.
Was erwartet Sie in diesem Zuhause:
* Sämtliche Zimmer haben raumhohe Fenster mit wunderbarer Aussicht auf die Berge
* Grosszügiger Korridor mit viel Platz für individuelle Nutzung
* Helle Küche mit V-Zug Geräten und edler Schweizer Granitabdeckung
* Vollholz-Eichenparket im Wohnzimmer/Korridor, in den anderen Zimmern Vollholz-Buchenparket
* Grosszügiger Gartens...
Kostenaufstellung
- Nettokosten
- CHF 2’140
- Zusätzliche Kosten
- CHF 280
- Gesamtkosten
- CHF 2’140
Immobiliendetails
- Verfügbar ab
- Nach Vereinbarung
- Zimmer
- 4.5
- Renovierungsjahr
- 2022
- Wohnfläche
- 113 m²
- Etage
- EG



