Wohnung mieten - Route Des Acacias, 1227 Les Acacias
Warum Sie diese Immobilie lieben werden
Offene Küche mit Miele-Geräten
Zwei große Loggien
Ruhiger Innenhof
Besichtigung vereinbaren
Besichtigung mit Isabella buchen
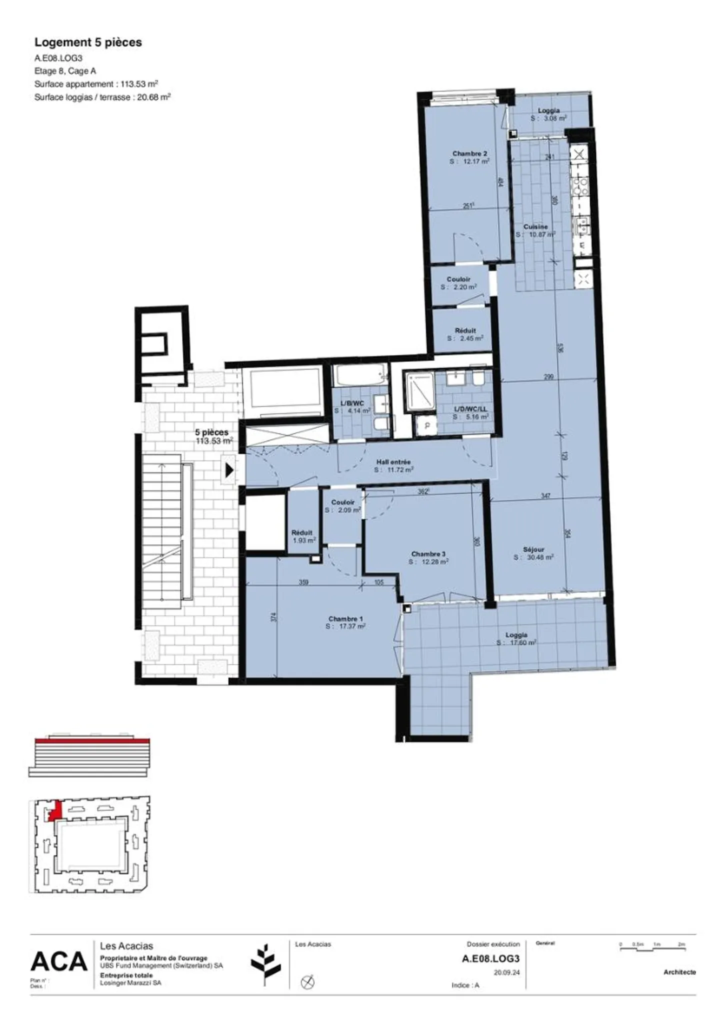
5-Zimmer-Wohnung
Auf Plan - 5 Zimmer in Les Acacias
Les Acacias bietet 320 neue Mietwohnungen (Typen von 2 bis 6 Zimmer), einen ruhigen Innenhof und Gewerbeflächen im Erdgeschoss an.
Diese große 5-Zimmer-Wohnung ist ideal für Paare mit Kindern. (Mindestens 3 Personen)
Sie verteilt sich wie folgt:
• Eingangsbereich mit Einbauschrank
• Offene Küche zum Wohnzimmer (ausgestattet mit Miele-Geräten: Kühlschrank, Gefrierschrank, Induktionskochfelder, Umluftofen, Dunstabzugshaube, Geschirrspüler) mit Zugang zu einer erste...
Kostenaufstellung
- Nettokosten
- CHF 3'704
- Zusätzliche Kosten
- CHF 464
- Gesamtkosten
- CHF 3'704
Immobiliendetails
- Verfügbar ab
- Nach Vereinbarung
- Zimmer
- 5
- Badezimmer
- 2
- Wohnfläche
- 113 m²



