Wohnung mieten - Neuhof, 8852 Altendorf
Warum Sie diese Immobilie lieben werden
Geräumiger Wohnbereich
Zentrale Lage
Direktzug nach Zürich
Besichtigung vereinbaren
Besichtigung mit Erster buchen
3.5-Zimmer per 1. Februar, 2250 CHF inkl. Stellplatz
Ich suche nach einem Nachmieter der die Wohnung und den Stellplatz in der Tiefgarage zum 1. Februar 2026 übernimmt.
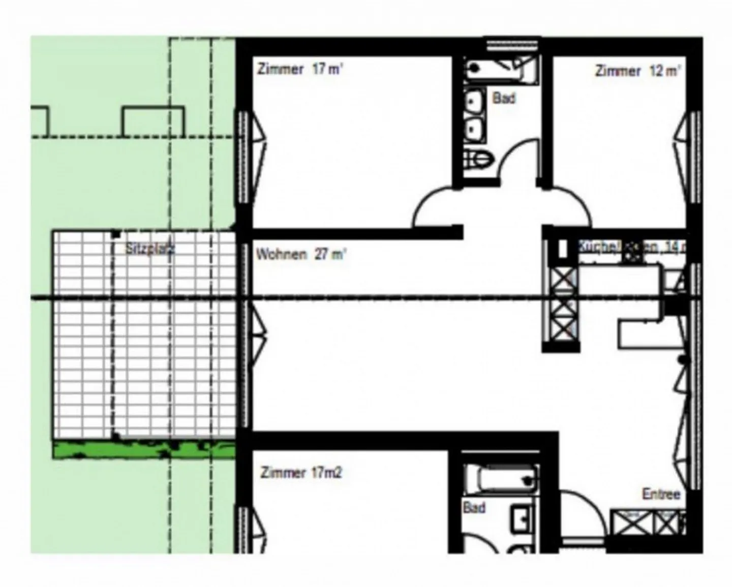
Es handelt sich um eine helle und gut geschnittene 3.5-Zimmer-EG Wohnung (ca. 77m²) in zentraler Lage in der steuergünstigen Gemeinde Altendorf (SZ, 8852) mit guter Anbindung nach Zürich (S2 Direktverbindung, Autobahn).
Die Wohnung verfügt über ein geräumiges Wohnzimmer und zwei Schlafzimmer/Büro/Kinderzimmer.
Immobiliendetails
- Verfügbar ab
- Nach Vereinbarung
- Zimmer
- 3.5
- Wohnfläche
- 77 m²
- Etage
- EG



