Wohnung mieten - Kelterstrasse, 9500 Wil SG
Warum Sie diese Immobilie lieben werden
Atemberaubender Alpsteinblick
Sonne den ganzen Tag
Waschmaschine in der Wohnung
Besichtigung vereinbaren
Besichtigung buchen
Parterrewohnung mit eigentumstandard
Ein Traum wird Wirklichkeit
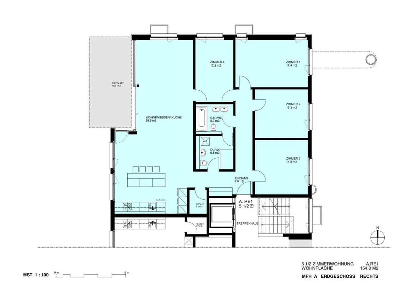
Sie wohnen leicht erhöht am Stadtrand von Wil, an der Grenze zu Bronschhofen, mit einer fantastischen Aussicht auf den Alpstein und bis zum Schwarzwald. Sie geniessen die Sonne von morgen früh bis abends spät. Sie haben von Ihrer Wohnung aus einen Blick, der bezahlbar ist. Waschmaschine und Tumbler in der Wohnung. Grosses Kellerabteil
Die Bilder sind zum Teil spiegelverkehrt.
Miete Garagenplatz Fr. 130.00/Monat
Miete Aussenplatz Fr. 40.00/Monat
Kostenaufstellung
- Nettokosten
- CHF 2’900
- Zusätzliche Kosten
- CHF 300
- Gesamtkosten
- CHF 2’900
Immobiliendetails
- Verfügbar ab
- Nach Vereinbarung
- Zimmer
- 5.5
- Badezimmer
- 2
- Baujahr
- 2010
- Etage
- EG



