Wohnung mieten - En Budron E, 1052 Le Mont-sur-Lausanne
Warum Sie diese Immobilie lieben werden
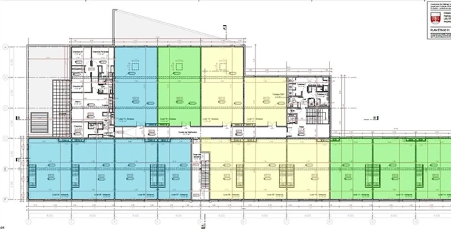
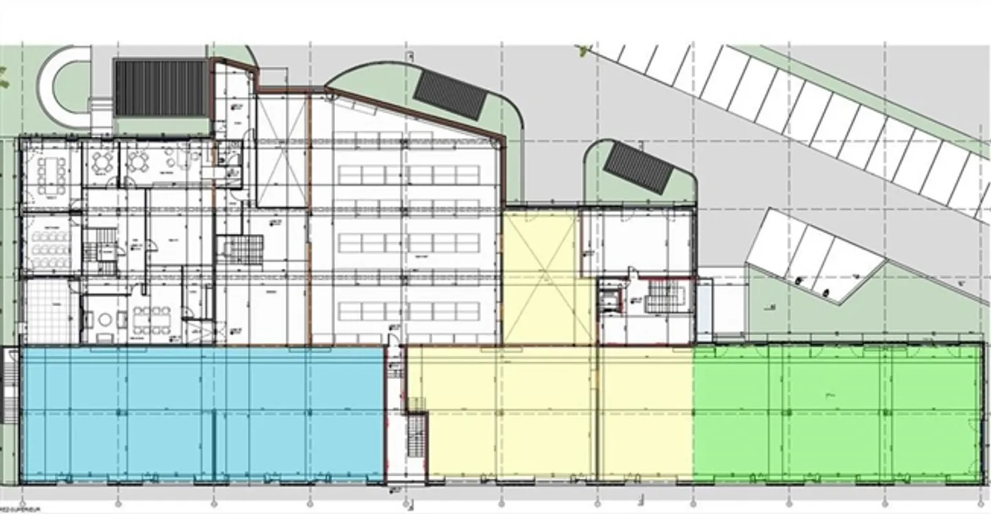
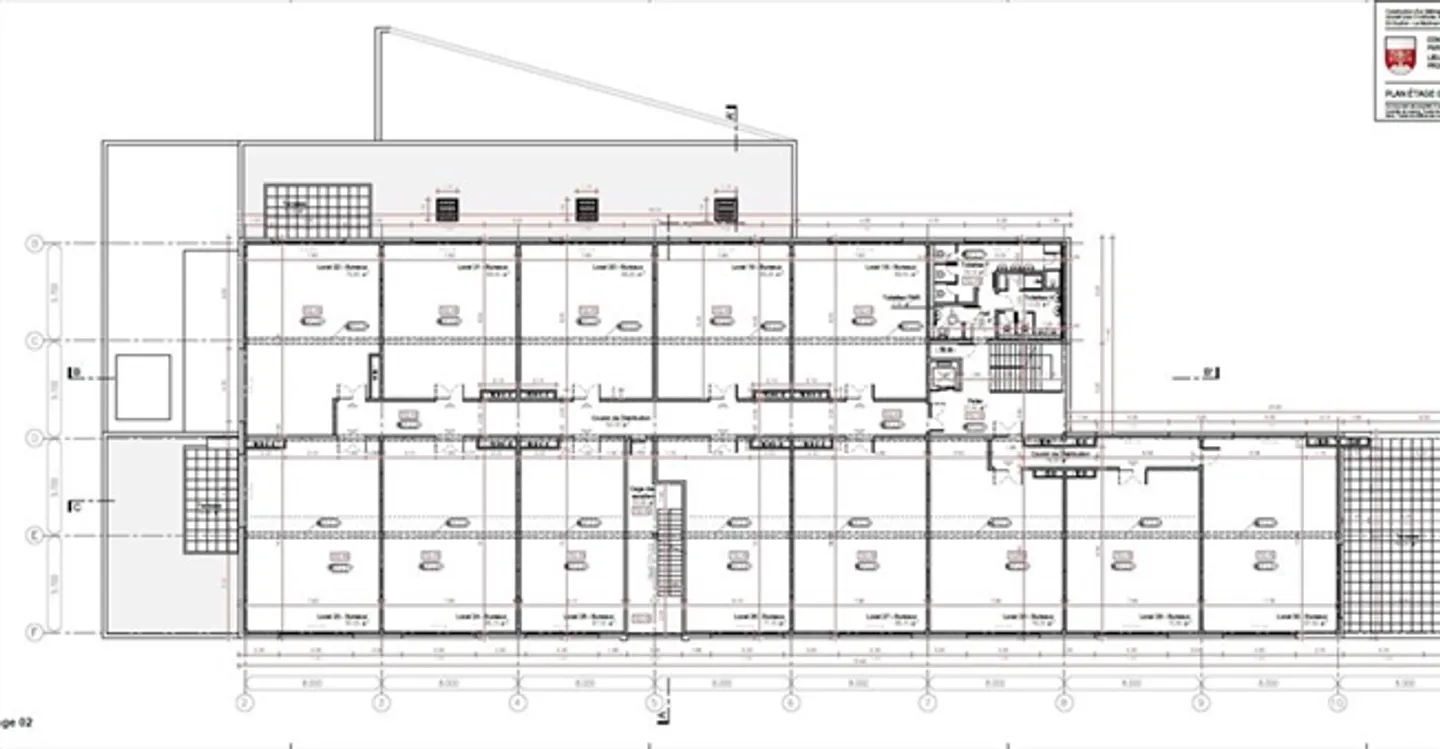
Flexible Raumoptionen
Hochdecke Werkstatt
Modularer Grundriss verfügbar
Besichtigung vereinbaren
Besichtigung buchen
Industrielles Objekt
Gemischte Flächen zur Miete in einem neuen Immobilienkomplex
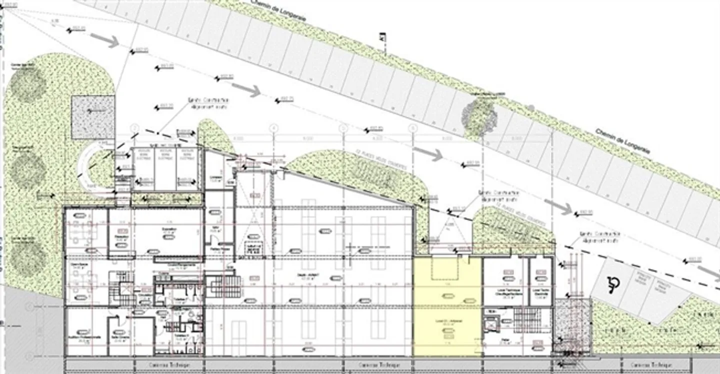
CBRE präsentiert ein Immobilienprojekt in Entwicklung auf dem Mont-Sur-Lausanne, ZI in Budron.
Dieser gemischte Komplex ermöglicht es Ihnen, eine Werkstattfläche im Erdgeschoss und Büros im Obergeschoss zu haben.
Mehrere verfügbare Einheiten:
- 449 m2 (Werkstatt: 335 m2 / Büros: 114 m2)
- 538,25 (Werkstatt: 355 m2 / Büros: 183,25 m2)
- 381,65 (Werkstatt: 268 m2 / Büros: 113,65 m2)
- 996,7 m2 Büros im obersten Stockwerk (teilbar ab 241,35 m...
Immobiliendetails
- Verfügbar ab
- Nach Vereinbarung



