Wohnung mieten - Derrey-Les-Ouches, 1483 Montet (Broye)
Warum Sie diese Immobilie lieben werden
Heller Wohnbereich
Voll ausgestattete Küche
Praktische Waschsäule
Besichtigung vereinbaren
Besichtigung buchen
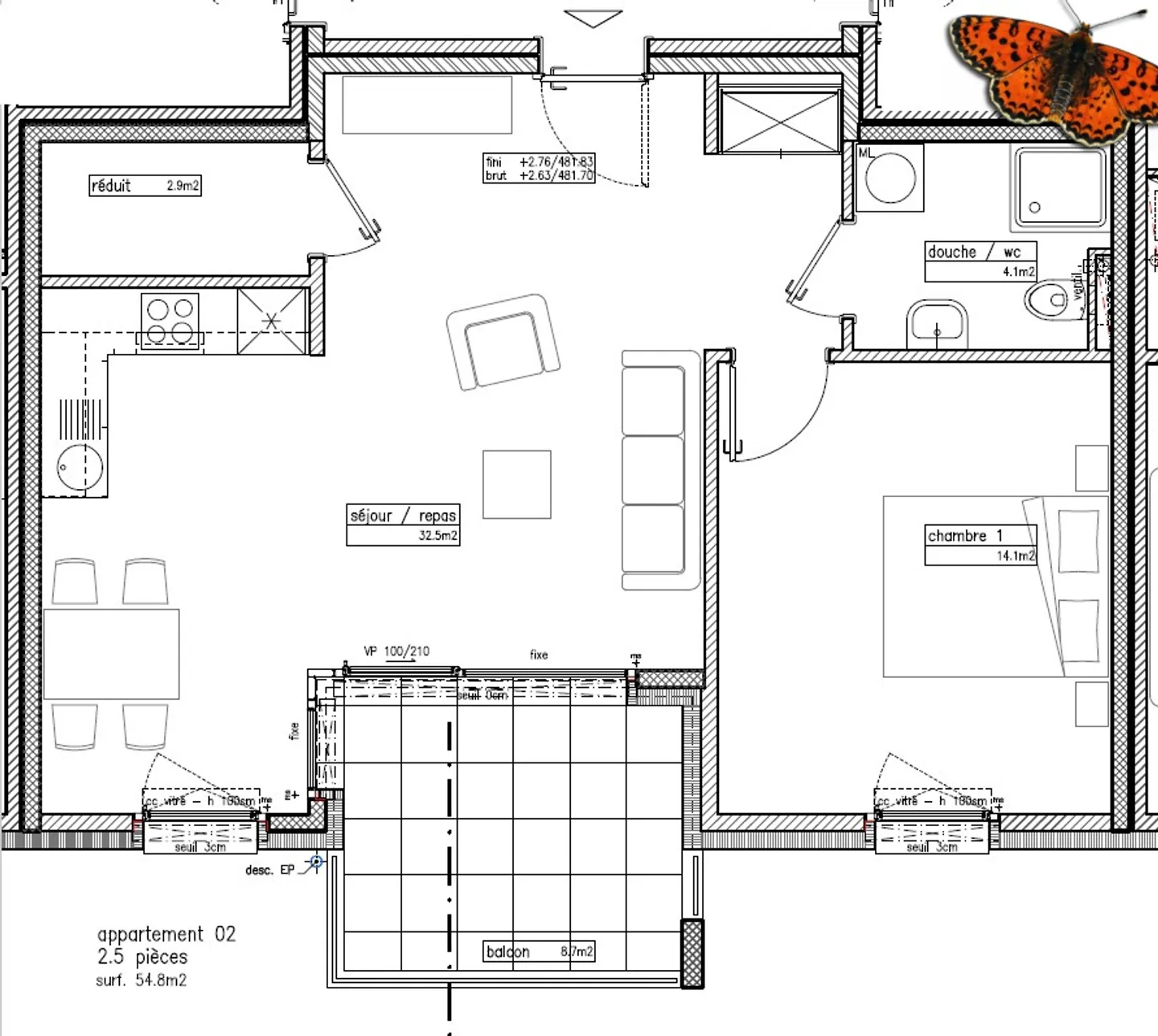
2 ½ ZIMMER - Mit einer Terrasse
Im Erdgeschoss eines modernen Gebäudes gelegen, besteht diese Wohnung aus: Eingang mit Abstellraum, Duschbad mit Waschsäule, einem großen Schlafzimmer, ausgestatteter offener Küche, hellem Wohnzimmer mit Zugang zur Terrasse.
Ein Keller ist verfügbar und ein Außenparkplatz kann für 60 CHF/Monat gemietet werden.
Kostenaufstellung
- Nettokosten
- CHF 1’350
- Zusätzliche Kosten
- CHF 145
- Gesamtkosten
- CHF 1’350
Immobiliendetails
- Verfügbar ab
- 01.04.2026
- Zimmer
- 2.5
- Badezimmer
- 1
- Baujahr
- 2014
- Wohnfläche
- 54.8 m²
- Terassenfläche
- 8.7 m²
- Etage
- EG



