Wohnung mieten - Dammstrasse, 8037 Zürich
Warum Sie diese Immobilie lieben werden
Frisch renovierte Innenräume
Gemütliche Kaminatmosphäre
Nur wenige Schritte vom ÖV
Besichtigung vereinbaren
Besichtigung buchen
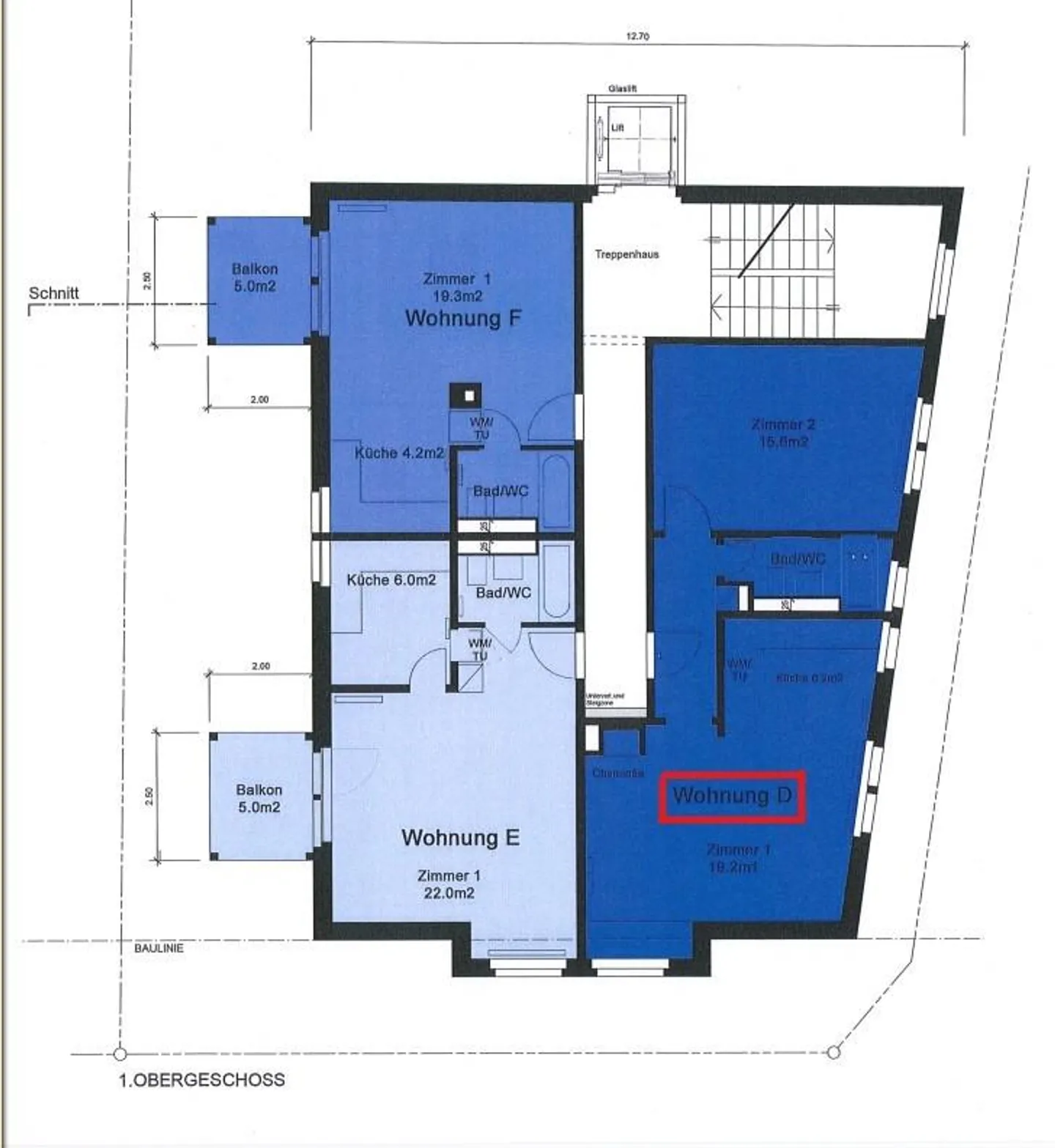
Wipkingen: 2.5-zimmer-perle sucht grössere wohnung zum tausch
[Tausch] Charmante 2.5-Zimmer-Wohnung, neu renoviert im perfekten Wipkingen – zum Tausch für eine grössere Wohnung.
Die Wohnung ist buchstäblich nur zwei Schritte vom Bahnhof Wipkingen entfernt, zwischen der Nordbrücke und dem Limmat Letten. Top-Lage, in der alles in 2 Minuten zu Fuss erreichbar ist: Coop, Post, Migros, Bahnhof, leckere Restaurants/Kafis und Badi.
Details zur Wohnung:
✔ Frisch renoviert
✔ Ruhig
✔ Geschirrspüler & private Waschmaschine/Trockner
✔ Gemütlicher Kamin
✔ Neu renovierter ...
Kostenaufstellung
- Nettokosten
- CHF 1’894
- Zusätzliche Kosten
- CHF 185
- Gesamtkosten
- CHF 1’894
Immobiliendetails
- Verfügbar ab
- Nach Vereinbarung
- Zimmer
- 2.5
- Renovierungsjahr
- 2020
- Wohnfläche
- 49 m²
- Etage
- 1.



