Dachgeschosswohnung mieten - Chemin Des Barrières, 1920 Martigny
Warum Sie diese Immobilie lieben werden
Geräumiger Balkon von 16 m²
Moderne Küche mit Weinkeller
Elektrische Jalousien im ganzen Haus
Besichtigung vereinbaren
Besichtigung mit Lucie buchen
4,5 Zimmer - Dachgeschoss - Chemin des Barrières
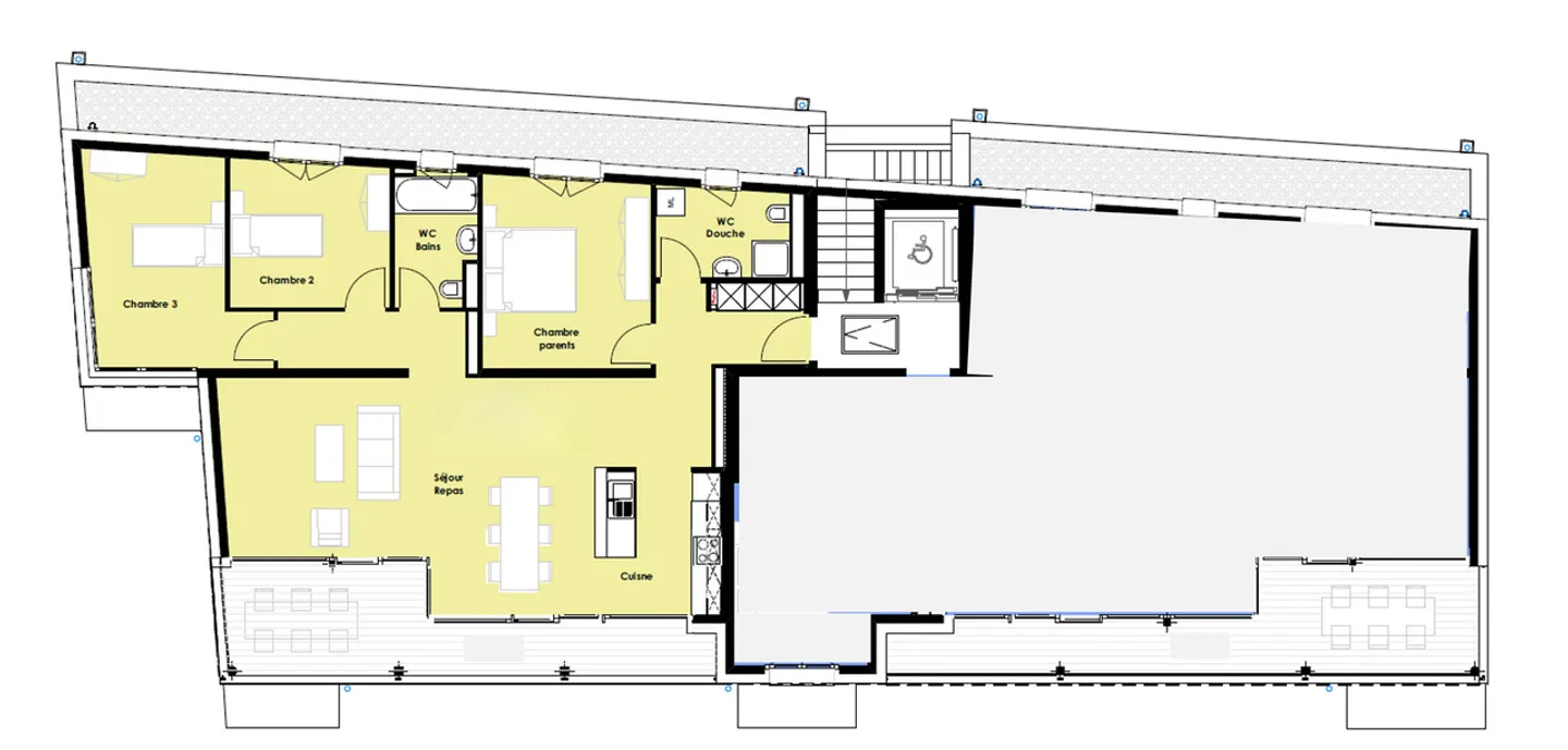
BESTA Immobilier SA bietet Ihnen zur Miete dieses 4,5-Zimmer-Dachgeschoss im 5. Stock der L'Eris-Promotion an, die sich in der Chemin des Barrières 27 in Martigny befindet.
Die Bruttowohnfläche des Apartments beträgt 128 m2, ergänzt durch einen geschlossenen Balkon von 16 m2 an der Ecke. Das Gebäude befindet sich nur wenige Schritte vom Stadtzentrum von Martigny entfernt und liegt gleichzeitig am Ufer der Dranse.
Die Wohnung besteht aus :
* 1 Eingangsbereich mit Wandschränken
* 1 ausgestattete Küc...
Kostenaufstellung
- Nettokosten
- CHF 2’150
- Zusätzliche Kosten
- CHF 350
- Gesamtkosten
- CHF 2’150
Immobiliendetails
- Verfügbar ab
- 01.02.2026
- Zimmer
- 4.5
- Baujahr
- 2017
- Wohnfläche
- 128 m²
- Etage
- 5.
- Geschosse
- 5



