Wohnung mieten - Cadonaustrasse, 7000 Chur
Warum Sie diese Immobilie lieben werden
Helle Wohnräume
Terrasse zur Entspannung
In der Nähe des Naherholungsgebiets
Besichtigung vereinbaren
Besichtigung buchen
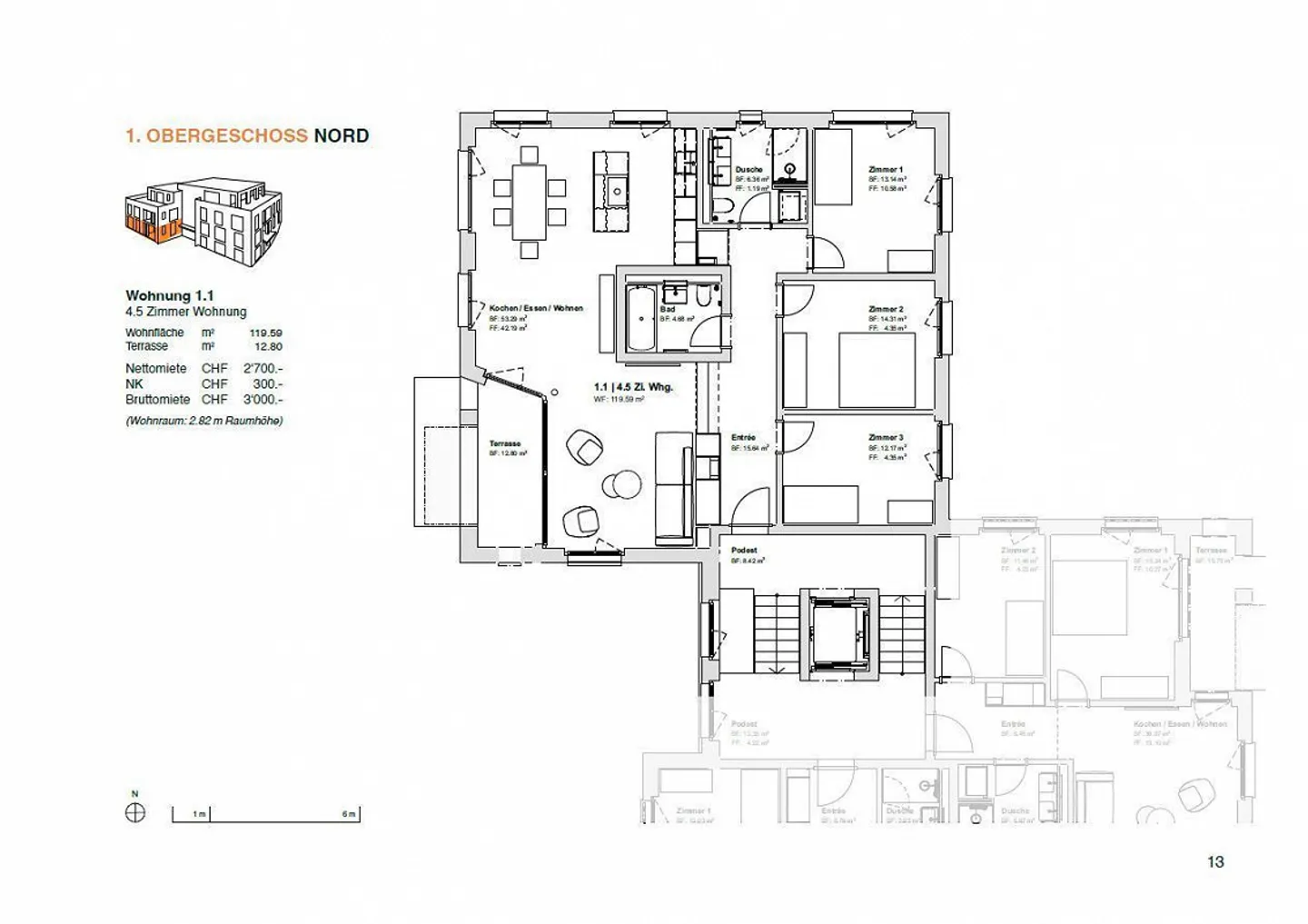
Letzte freie Wohnung im Haus G
Erhöht wohnen – Natur geniessen – stadtnah leben - Dies beschreibt die neue Überbauung Töbeli am nördlichen Siedlungsrand von Chur am besten. In einer ersten Etappe entstehen 54 moderne Mietwohnungen von 2.5 bis 5.5 Zimmern in den Häusern D bis I.
Die Wohnungen überzeugen mit gut durchdachten Grundrissen, hellen Wohnräumen und einem stilvollen Innenausbau. Das geplante Projekt verbindet modernes Wohnen mit der Nähe zur Natur und zur Stadt. Die Lage direkt beim Naherholungsgebiet Fürstenwald biete...
Kostenaufstellung
- Nettokosten
- CHF 3’000
- Zusätzliche Kosten
- CHF 300
- Gesamtkosten
- CHF 3’000
Immobiliendetails
- Verfügbar ab
- Nach Vereinbarung
- Zimmer
- 4.5
- Baujahr
- 2026
- Wohnfläche
- 119 m²
- Etage
- 1.
- Geschosse
- 4



