Wohnung mieten - Binzikerstrasse, 8627 Grüningen
Warum Sie diese Immobilie lieben werden
Historischer Charme in Grüningen
Grosse Terrasse zum Entspannen
Nah an Natur und Annehmlichkeiten
Besichtigung vereinbaren
Besichtigung buchen
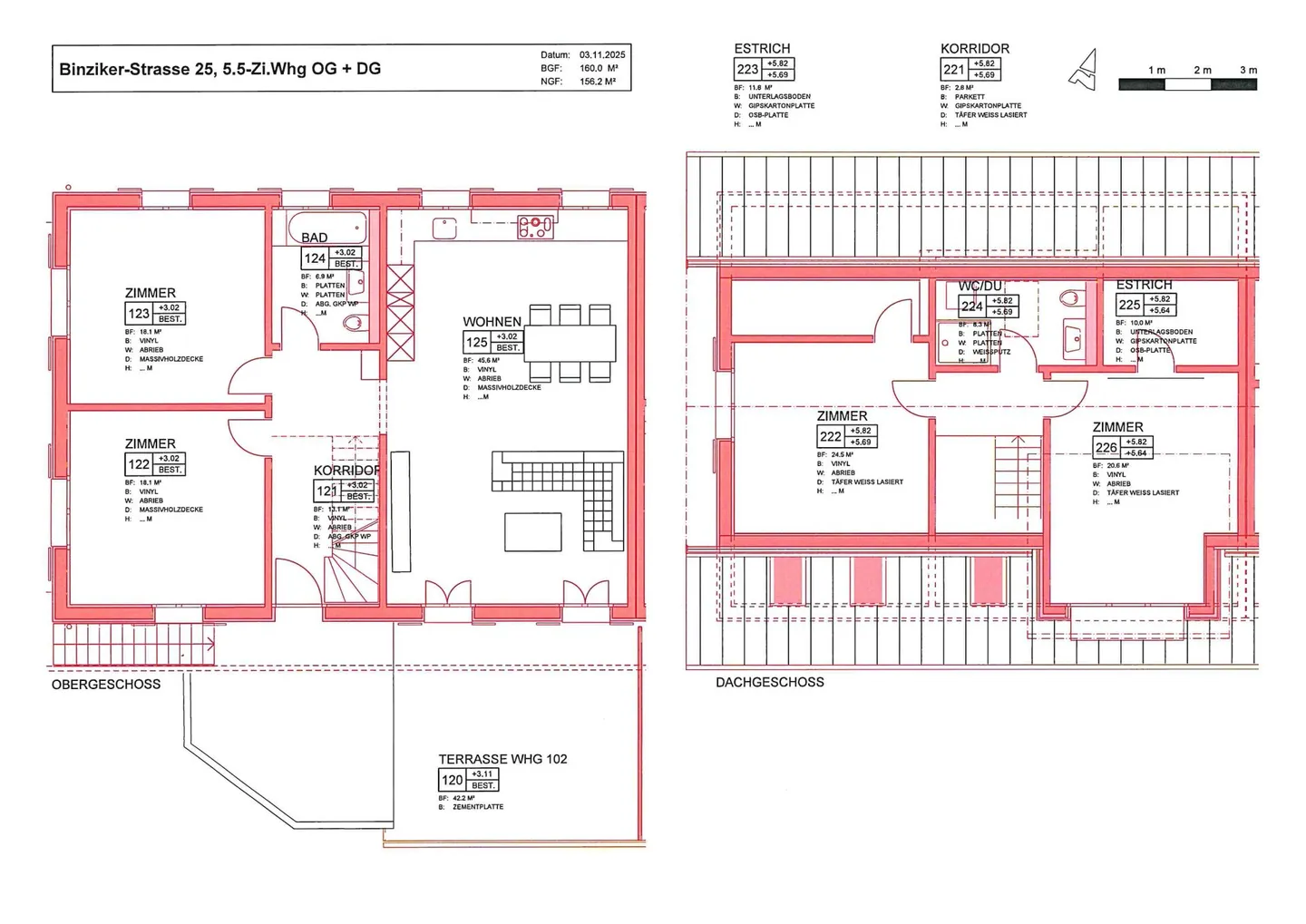
Erstvermietung: sonnige 5.5 zimmer-maisonette-wohnung mit grosser terrasse
Grüningen - Wohnen, wo sich Geschichte und Lebensqualität treffen
Die Ortschaft Grüningen bezaubert mit ihrem einzigartig historischen Charme und einer Lebensqualität, die man nur selten findet. Das malerische Städtchen mit seinem gut erhaltenen mittelalterlichen Ortskern und dem imposanten Schloss, strahlt eine ganz besondere Atmosphäre aus.
Das Dorf Grüningen bietet diverse Einkaufsmöglichkeiten (Volg, Metzgerei, Käserei, Blumenladen, Bäckerei/Café Steiner), Restaurants, Schulen und Freizeitange...
Kostenaufstellung
- Nettokosten
- CHF 3’210
- Zusätzliche Kosten
- CHF 280
- Gesamtkosten
- CHF 3’210
Immobiliendetails
- Verfügbar ab
- Nach Vereinbarung
- Zimmer
- 5.5
- Badezimmer
- 2
- Baujahr
- 2025
- Etage
- 1.




