Wohnung mieten - Bahnhofstrasse, 5322 Koblenz
Warum Sie diese Immobilie lieben werden
Heller, geräumiger Wohnbereich
Moderne Küche mit Essbereich
Zwei Balkone zur Entspannung
Besichtigung vereinbaren
Besichtigung mit Patrick buchen
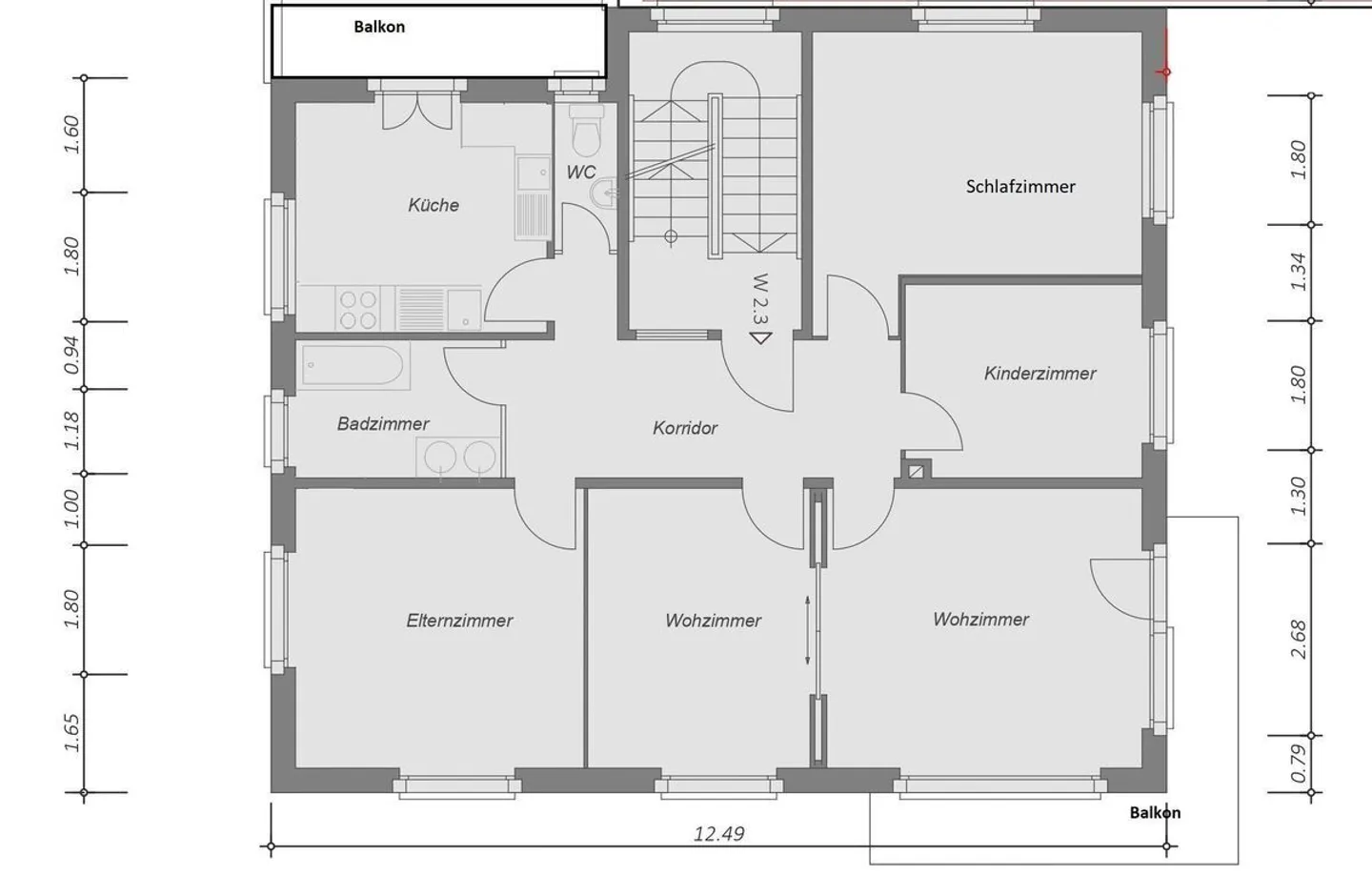
Sanierte 5 Zimmer Wohnung mit zwei Balkons
Gerne senden wir Ihnen vorab einen Videorundgang per whatsapp.
Die Wohnung wurde 2022 komplett saniert.
Im 2.OG des Hauses liegt diese sanierte und neu gestaltete 5 Zimmer Wohnung mit zwei Balkons.
Zwei grosse, sowie ein kleineres Schlafzimmer lassen sich individuell nutzen.
Egal ob als Kinderzimmer oder für ein grosszügiges Homeoffice.
Alle Zimmer sind über einen Flur erschlossen.
Ein Schlafzimmer ist hofseitig ausgerichtet, das andere grosse Schlafzimmer gegen die Strasse. Das kleinere Kinde...
Kostenaufstellung
- Nettokosten
- CHF 2’400
- Zusätzliche Kosten
- CHF 200
- Gesamtkosten
- CHF 2’400
Immobiliendetails
- Verfügbar ab
- 01.02.2026
- Zimmer
- 5
- Wohnfläche
- 92 m²
- Nutzfläche
- 100 m²
- Etage
- 2.
- Geschosse
- 2



