1 / 9

Wohnung mieten - Baselstrasse 9c, 6252 Dagmersellen

2.5 Zimmer • Erdgeschoss
CHF 1’660.-
-

Warum Sie diese Immobilie lieben werden

Moderne offene Küche

Geräumiges Badezimmer mit Dusche

Praktische Lage nahe Geschäften

Besichtigung vereinbaren

Besichtigung mit Isenegger buchen

Isenegger
Truvag AG

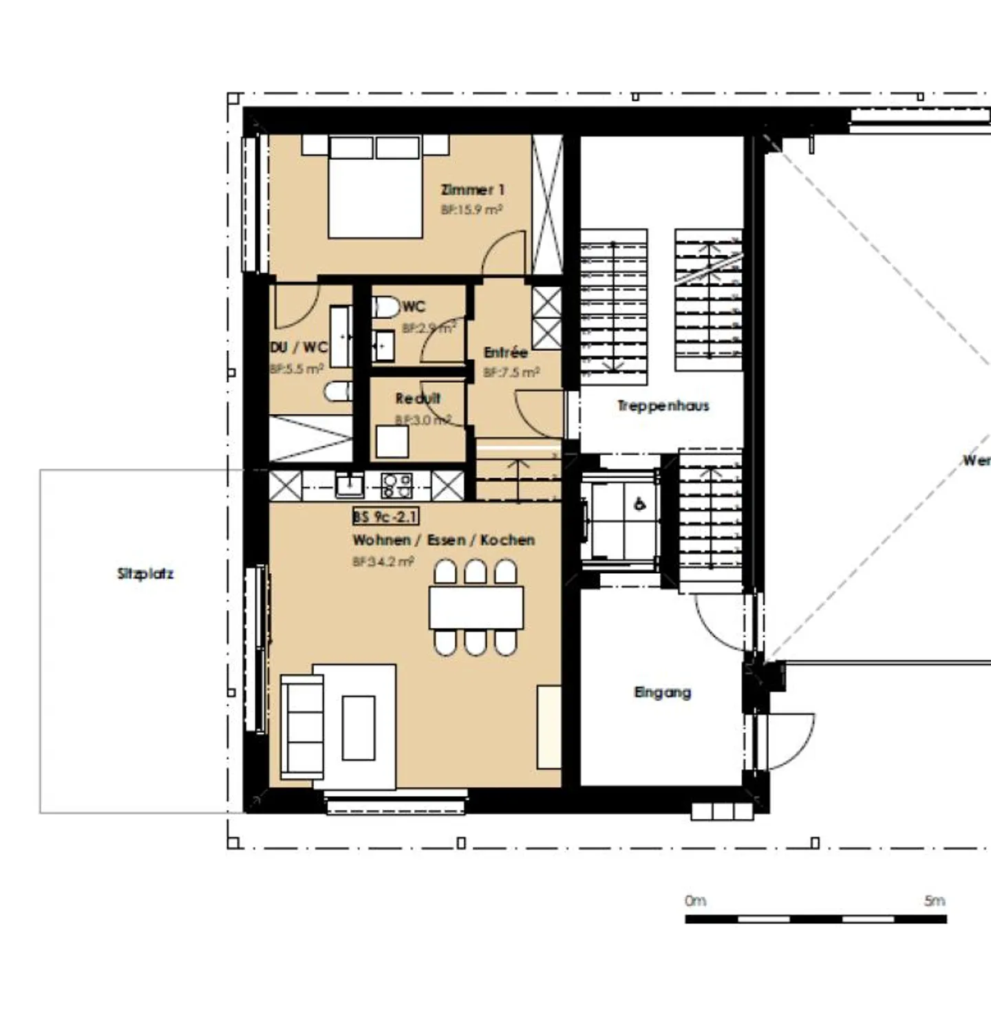
Helle 2½-zimmer-wohnung im zentrum von dagmersellen

Hier erwartet Sie ein echtes Wohn-Highlight!

Wohnung:

- Attraktiver Grundriss und helle Räume

- Offene Küche mit topmodernen Geräten

- Bodenbeläge aus schönem Parkett und pflegeleichten Platten

- Grosses Badezimmer mit Dusche

- Separates Gästebad

- Praktischer Wandschrank im Eingangsbereich

- Geräumiges Reduit mit eigenem Waschturm

- Gemütlicher Sitzplatz

Wohnlage:

- Nahe öffentlichem Verkehr

- Autobahnanschluss in alle Richtungen

- Diverse Einkaufsmöglichkeiten in Gehdistanz

Parken:

- Einstellhallenp...

Immobiliendetails

Verfügbar ab
Nach Vereinbarung
Zimmer
2.5
Baujahr
2023
Etage
EG

Agentur

Truvag AG
Adresse:Reiden, Hauptstrasse, 6260
Ref: 1610-IBWP-8524.2301.3a7d7d4e-a9b3-11f0-89d7-069ae14c7a06
Online seit
15/10/2025
vor 4 Tagen

Standort

Baselstrasse 9c, 6252 Dagmersellen

Quellen