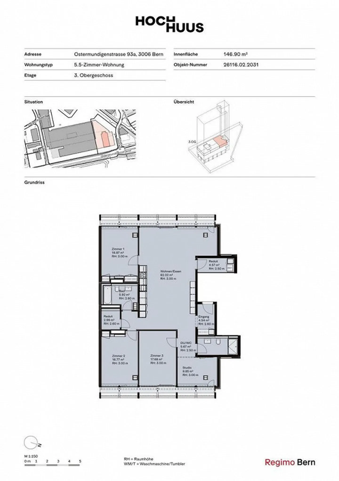
Wohnung mieten - Ostermundigenstrasse 93a, 3006 Bern
5.5 Zimmer • 147 m² • 3. Etage
Preis auf Anfrage / Monat
-
Warum Sie diese Immobilie lieben werden
Panoramablick auf die Stadt
Modernes offenes Layout
Zentrale Lage in Bern
Besichtigung vereinbaren
Besichtigung mit Michèle buchen
Michèle Scherwey
Regimo Bern AG
Immobiliendetails
- Verfügbar ab
- Nach Vereinbarung
- Zimmer
- 5.5
- Renovierungsjahr
- 2026
- Wohnfläche
- 147 m²
- Etage
- 3.
Eigenschaften
Balkon
Unverbaubare Aussicht
Lift
Haustiere erlaubt
Agentur
Regimo Bern AG
Adresse:Bern, Thunstrasse 32, 3005
Ref: 916_26116.02.2031_EV
Online seit
28/03/2026
vor 23 Tagen
Standort
Ostermundigenstrasse 93a, 3006 Bern



