Penthouse mieten - Wachtelstrasse 9, 4123 Allschwil
Warum Sie diese Immobilie lieben werden
Heller und luftiger Wohnraum
Ruhige Wohngegend
Nahe öffentlicher Verkehrsmittel
Besichtigung vereinbaren
Besichtigung buchen
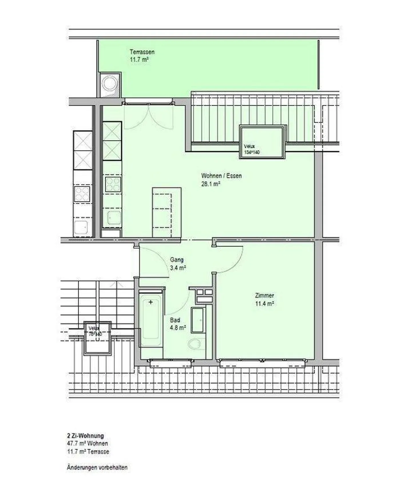
Schöne 2 zimmer dachwohnung
Diese schöne, helle 2 Zimmer Dachwohnung befindet sich in einem sehr gepflegten kleinen, ruhigen Mehrfamilienhaus in Allschwil.
Einkausfmöglichkeiten, Tram und Bus sind ebenfalls in wenigen Gehminuten erreichbar.
Immobiliendetails
- Verfügbar ab
- Nach Vereinbarung
- Zimmer
- 2
- Renovierungsjahr
- 2012
- Wohnfläche
- 48 m²
- Etage
- 2.
- Geschosse
- 2



