Wohnung mieten - Kreuzweg 9, 1734 Tentlingen
Warum Sie diese Immobilie lieben werden
Geräumiger Wohnbereich
Moderne offene Küche
Einladender Terrassenbereich
Besichtigung vereinbaren
Besichtigung buchen
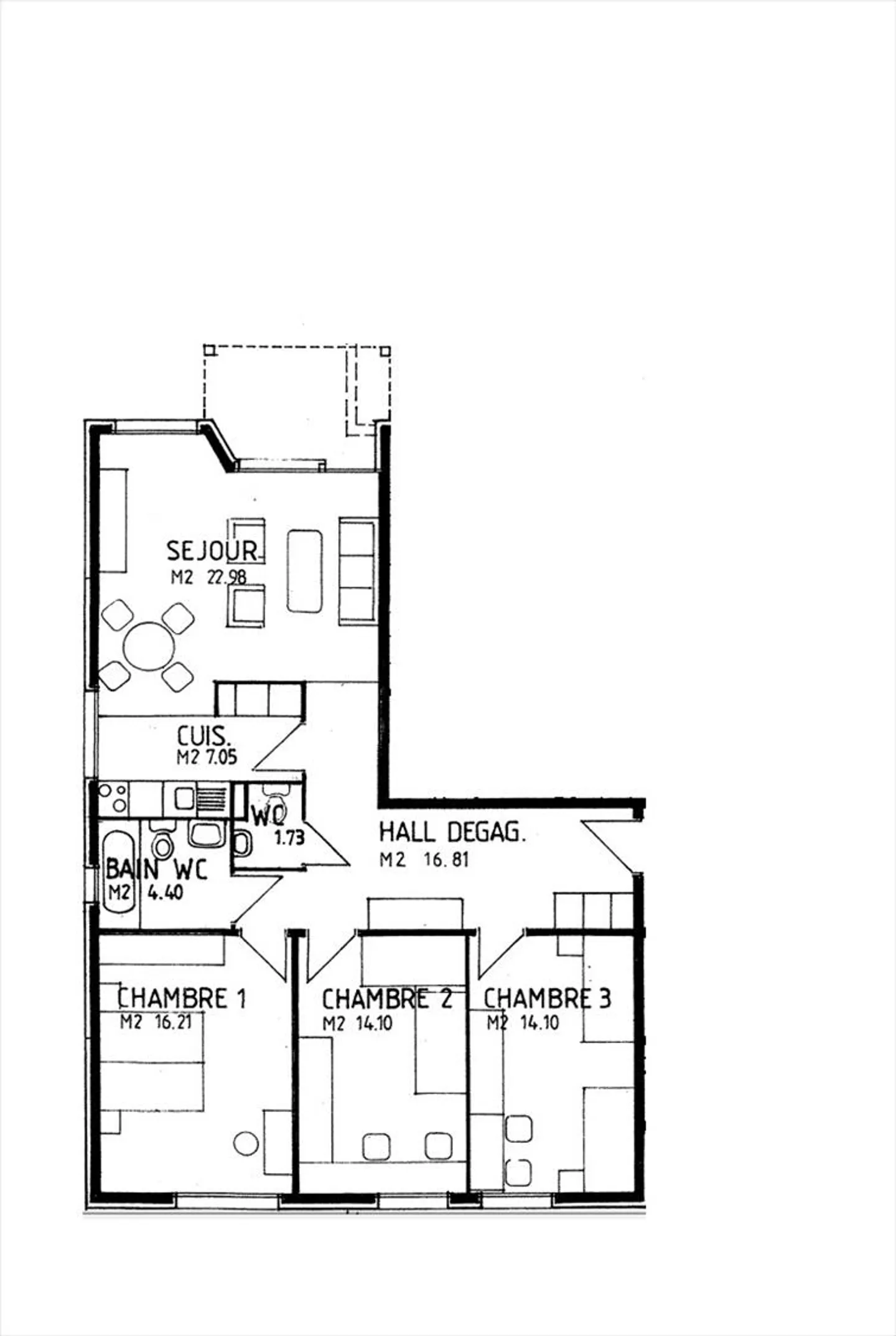
Schöne 4-zimmer-wohnung mit terrasse
Diese 4-Zimmer-Wohnung mit Terrasse besteht aus: Flur mit Wandschränken, einer offenen Küche zum Wohnzimmer, einem geräumigen Wohnzimmer, drei Schlafzimmern, einem Badezimmer/WC, einem separaten WC und einer Terrasse.
Haben wir Ihr Interesse geweckt?
Kostenaufstellung
- Nettokosten
- CHF 1’577
- Zusätzliche Kosten
- CHF 320
- Gesamtkosten
- CHF 1’577
Immobiliendetails
- Verfügbar ab
- 01.02.2026
- Zimmer
- 4.5
- Wohnfläche
- 97 m²
- Nutzfläche
- 97 m²



