Wohnung mieten - Tösstalstrasse 85, 8400 Winterthur
Warum Sie diese Immobilie lieben werden
Grosszügige Küche zum Kochen
Eleganter Parkettboden
Zwei moderne Badezimmer
Besichtigung vereinbaren
Besichtigung mit Wintimmo buchen
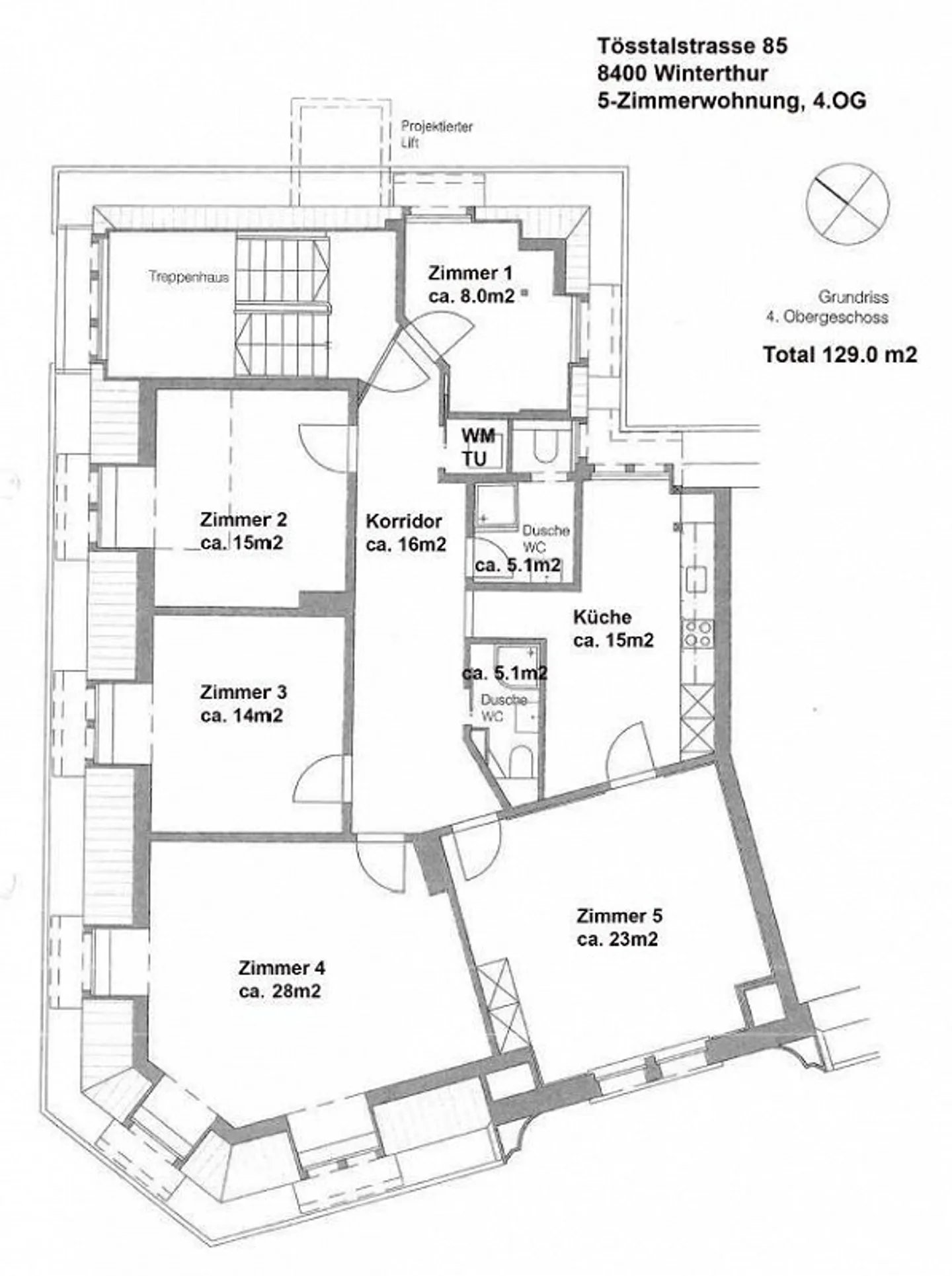
5.0-zimmer-wohnung in winterthur
Wir vermieten per 1. Februar 2026 diese 5.0-Zimmer-Wohnung in Winterthur.
Die Wohnung befindet sich an zentraler Lage. In unmittelbarer Nähe finden Sie diverse Einkaufsmöglichkeiten sowie Gastronomiebetriebe.
Die Wohnung verfügt über folgende Merkmale:
- grosszügige Küche
- Wohn- und Schlafzimmer mit Parkettboden und Altbaucharme
- zwei Badezimmer mit Dusche
- 1 Kellerabteil
- Velounterstand
Haben wir Ihr Interesse geweckt? Dann nehmen Sie mit uns für einen Besichtigungstermin über das Kontaktformu...
Kostenaufstellung
- Nettokosten
- CHF 3’174
- Zusätzliche Kosten
- CHF 230
- Gesamtkosten
- CHF 3’174
Immobiliendetails
- Verfügbar ab
- Nach Vereinbarung
- Zimmer
- 5
- Wohnfläche
- 123 m²
- Etage
- 4.



