Wohnung mieten - Engelhardstrasse 83, 3280 Murten
Warum Sie diese Immobilie lieben werden
Grosse Terrasse zum Entspannen
Offene Küche mit Essecke
Günstige Lage, helles Raumangebot
Besichtigung vereinbaren
Besichtigung mit Michèle buchen
MIETEN OHNE KAUTION - Hier könnte Ihr Wohntraum in Erfüllung gehen
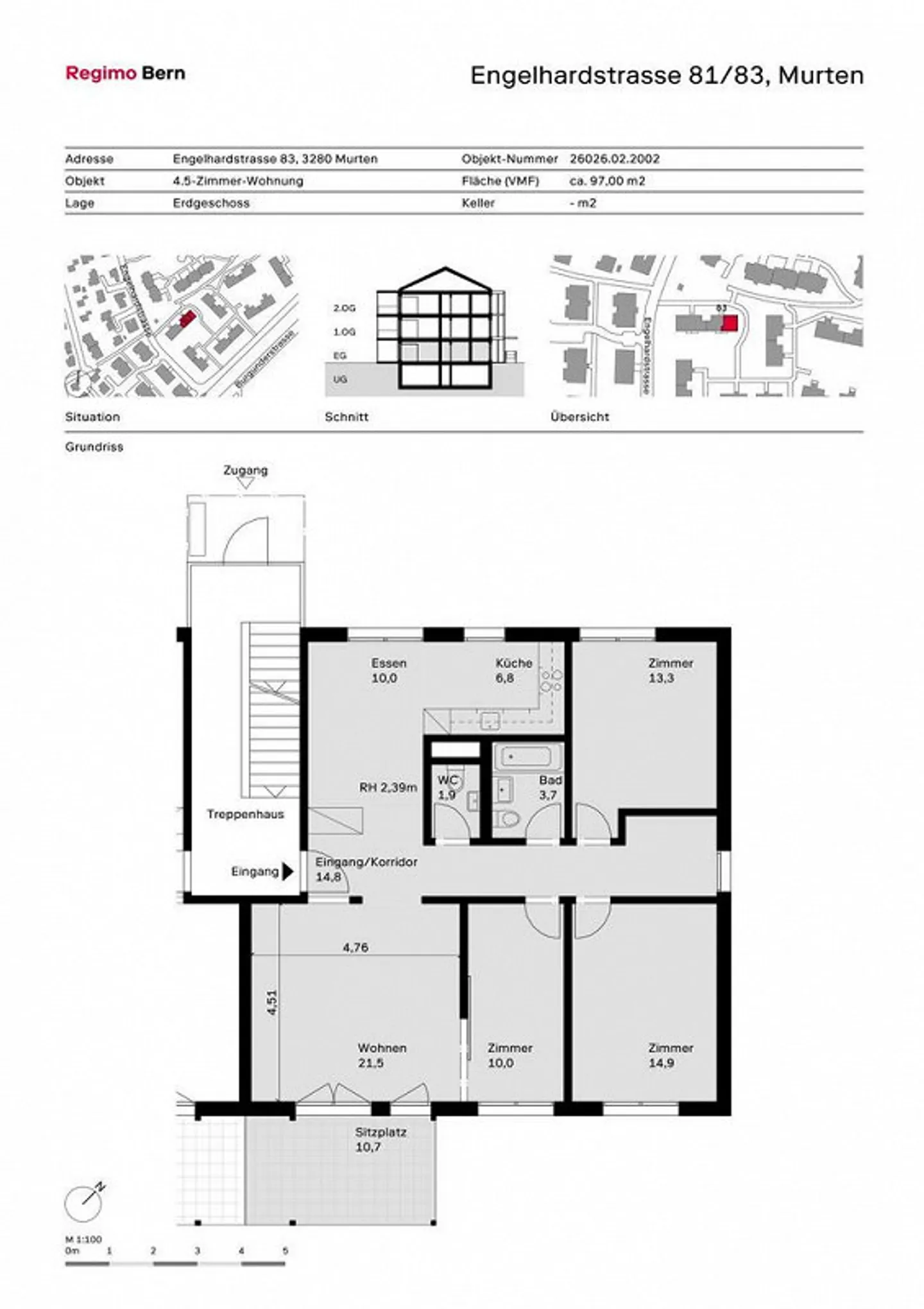
Günstige Verkehrslage, attraktiver Grundriss, moderne Ausstattung, viel Licht und Luft: Diese Vorzüge machen diese Wohnung zu einem besonders begehrten Ort zum Leben und Sein. Eine Kleinfamilie oder ein Paar mit hohen Ansprüchen an Ausstattung und Komfort wird sich hier vom ersten Tag an wohl- und heimisch fühlen.
Für Ihre Wohnqualität:
- offene Küche mit Glaskeramik-Kochfeld und Essecke
- Plattenboden in Küche und Nasszelle
- Nasszelle mit Bad und WC
- Garderobe beim Eingang
- Einbauschränke im ...
Kostenaufstellung
- Nettokosten
- CHF 1’954
- Zusätzliche Kosten
- CHF 300
- Gesamtkosten
- CHF 1’954
Immobiliendetails
- Verfügbar ab
- Nach Vereinbarung
- Zimmer
- 4.5
- Wohnfläche
- 91 m²
- Etage
- EG



